about > News > ASCENSORE APPROVATO

27 maggio 2019

ASCENSORE APPROVATO

ASCENSORE APPROVATO

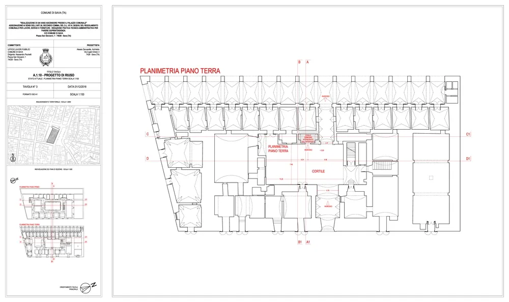
Scrivo questo articolo un po' amareggiato per via del fatto che la Soprintendenza dei Beni Culturali di Taranto non ha approvato la mia 1ª bozza del progetto ASCENSORE presentata a luglio dello scorso anno (vedi LINK), ma contento nello stesso tempo di aver ricevuto invece pochi giorni fa l'approvazione della nuova 2ª proposta che prevede un vano ascensore completamente vetrato, collocato in un'altra zona dell'atrio, in adiacenza ad un locale dismesso che costituirà l'ingresso e sala d'attesa, così come ha prescritto la Soprintendenza. Nell'articolo, oltre alle tavole del PROGETTO APPROVATO, inserisco volentieri alcune foto di come si presenta attualmente il cortile, prima che comincino i lavori, anche per lasciare una traccia fotografica dello spazio che presto cambierà volto.

- - -

Aggiornamento del 24/09/2021

Al seguente LINK è pubblicato il completamento del montaggio della struttura dell'ascensore, secondo il progetto della 2ª proposta.

- - -

Aggiornamento del 01/01/2023

Al seguente LINK, la pubblicazione del progetto portfolio ASCENSORE SAVA, completa di tutti i dettagli dell'attività di progettazione.

news in evidenza

vantaggiani-floor

03 marzo 2025

VANTAGGIANI FLOOR

Oggi vi porto all'interno di uno dei cantieri che sto seguendo di recente; si tratta di una masseria...

Continua...

news