about > News > CASA SAM

23 September 2011

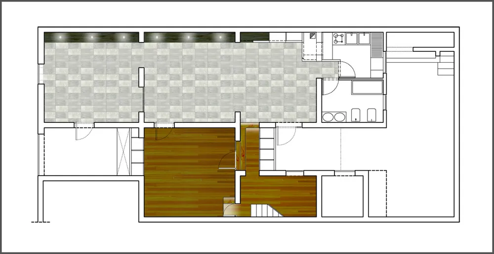
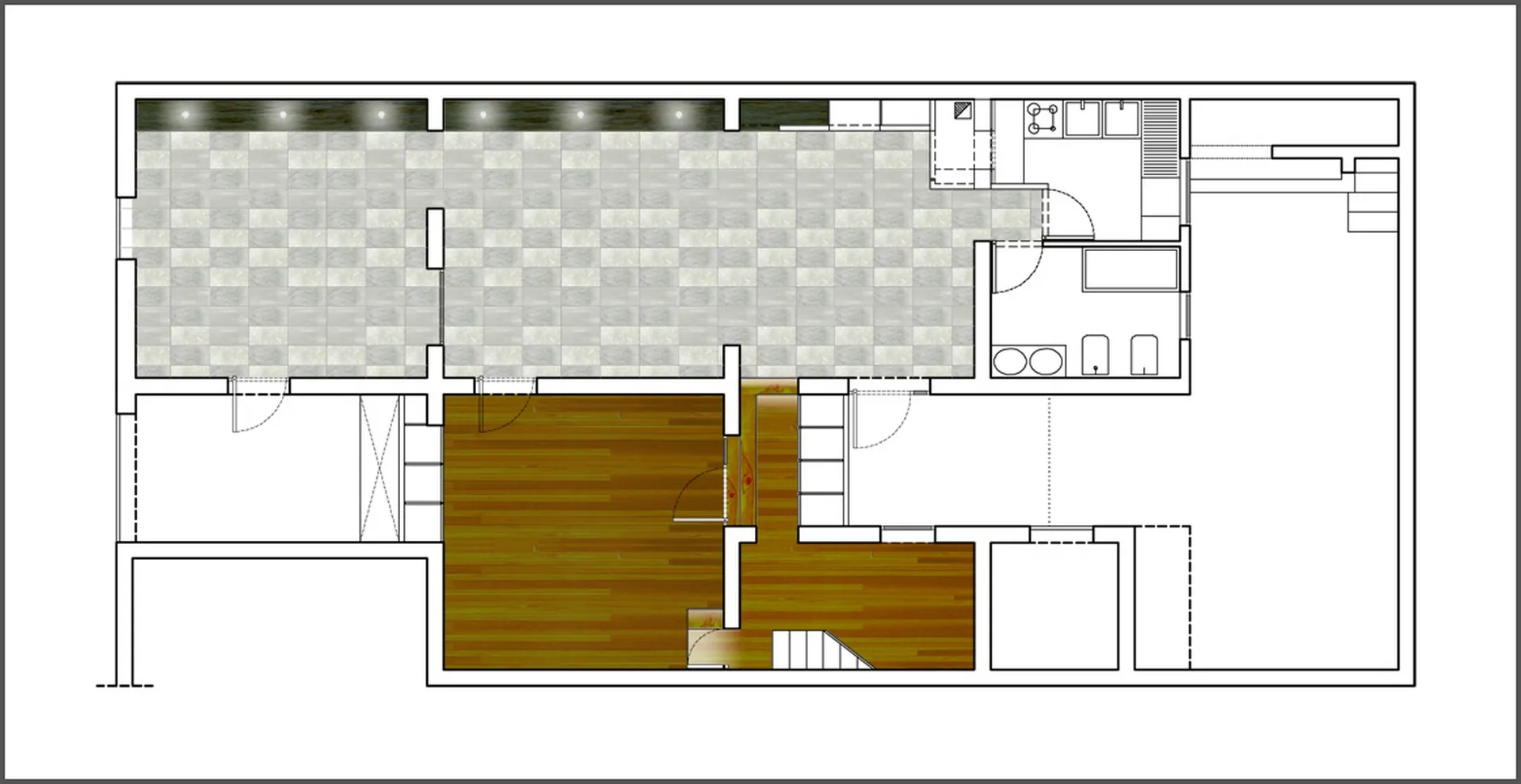
CASA SAM

CASA SAM

Proposta di riconfigurazione interna di una residenza a Sava (TA) caratterizzata da volte. L'architetto Zanzarella per CASA SAM ha sviluppato una proposta come esercizio "sperimentale", con materiali anche fuori contesto (ardesia nera, peperino, etc.) proprio per dimostrare come anche in uno spazio dalla tipica forte identità pugliese, si possa comunque ri-creare un senso di armonia ed equilibrio seppure utilizzando materiali non autoctoni e non originari del luogo.

news

siri-concept

03 March 2012

SIRI CONCEPT

Proposta di riconfigurazione di un living per una abitazione a Fucecchio (FI). Caratteristica del co...

Continua...

vai all'archivio