about > News > VIA CARROZZO

18 October 2016

VIA CARROZZO

VIA CARROZZO

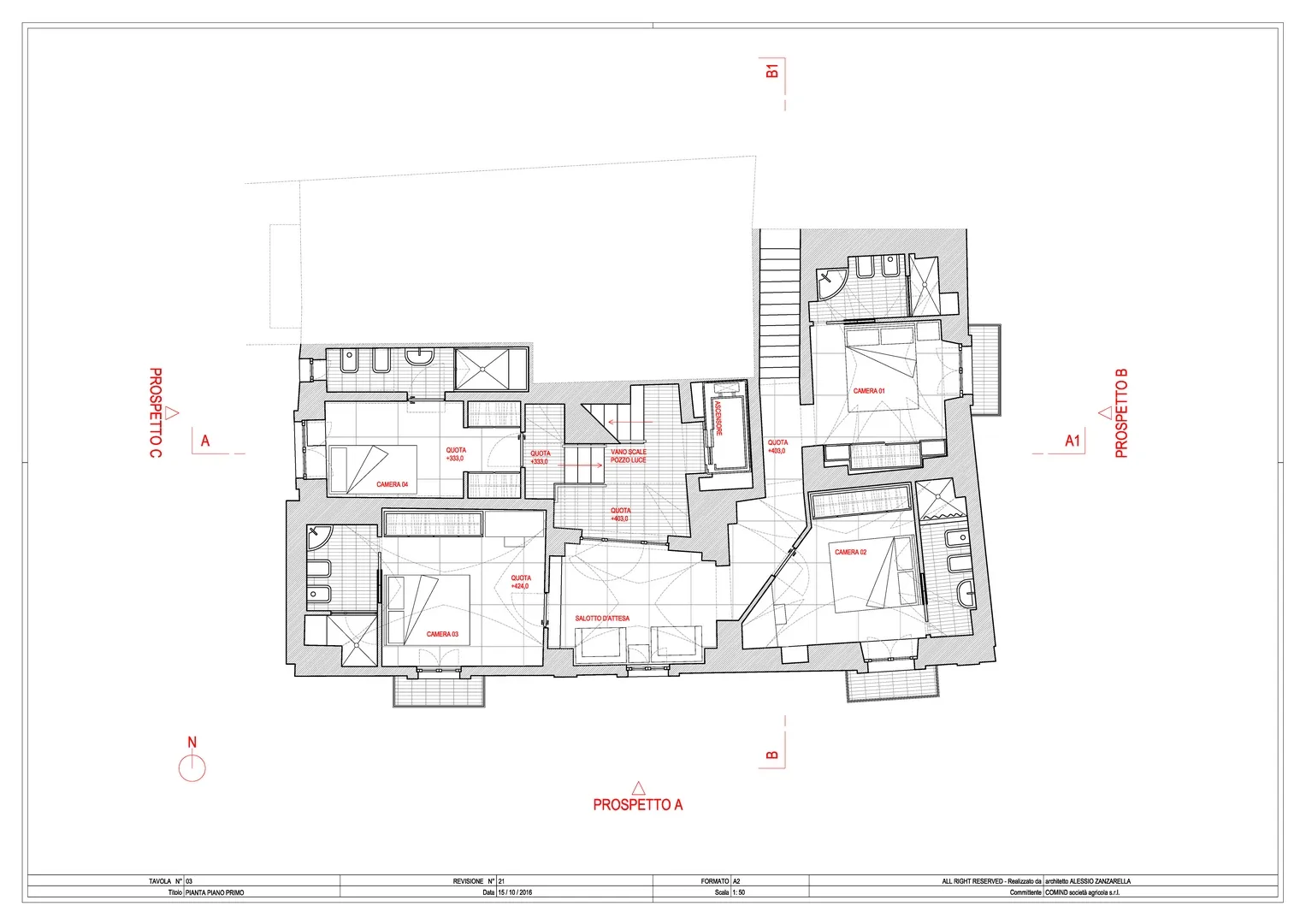
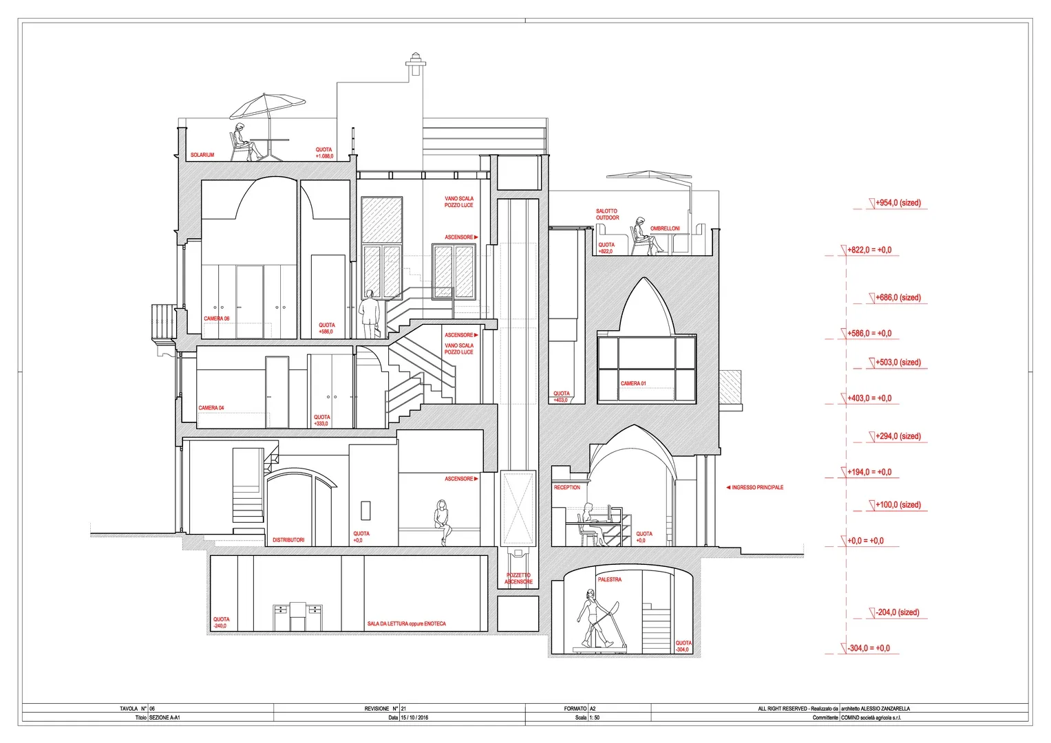
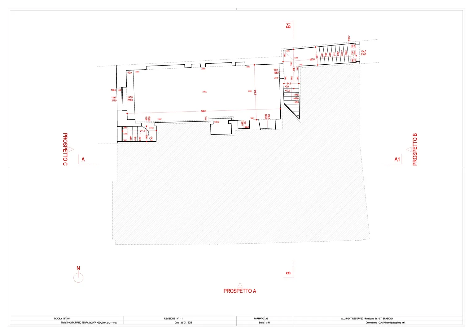
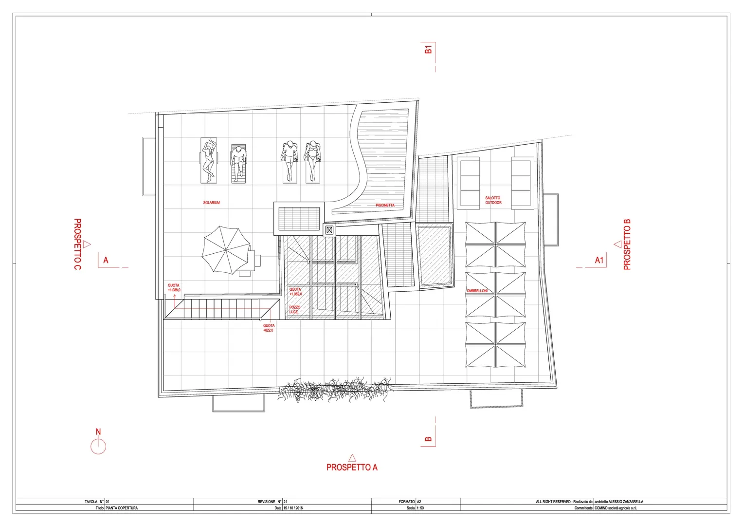
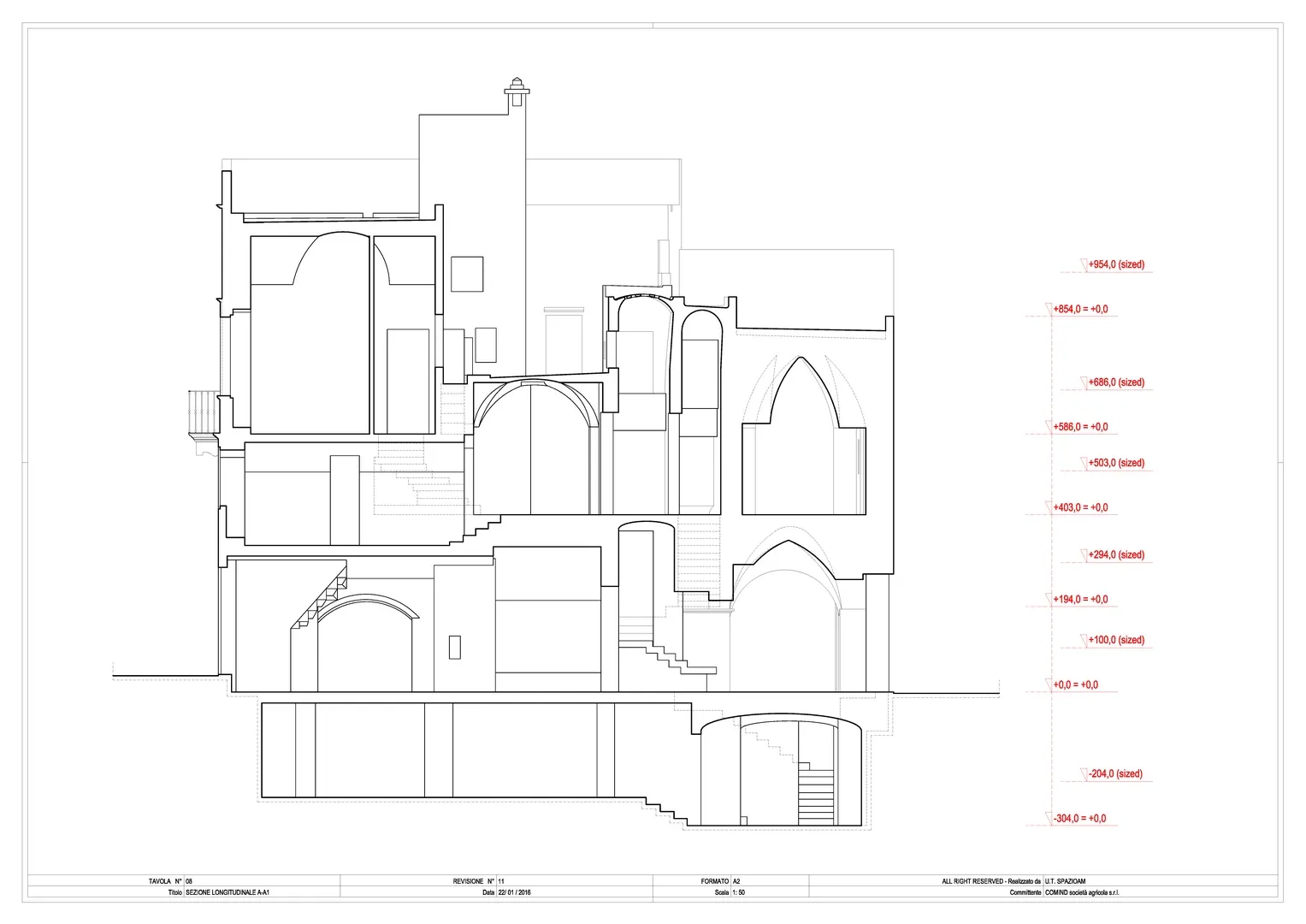
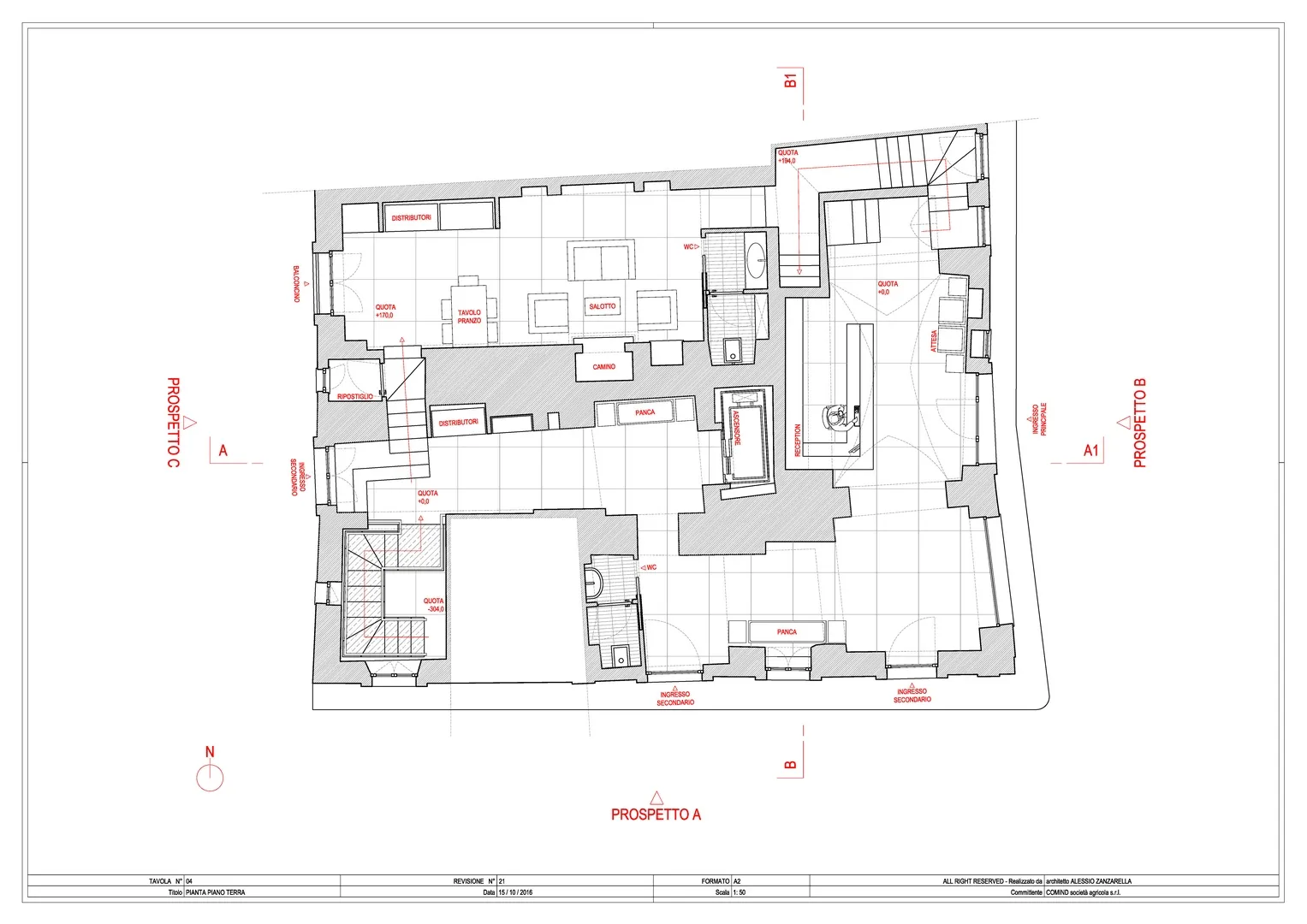
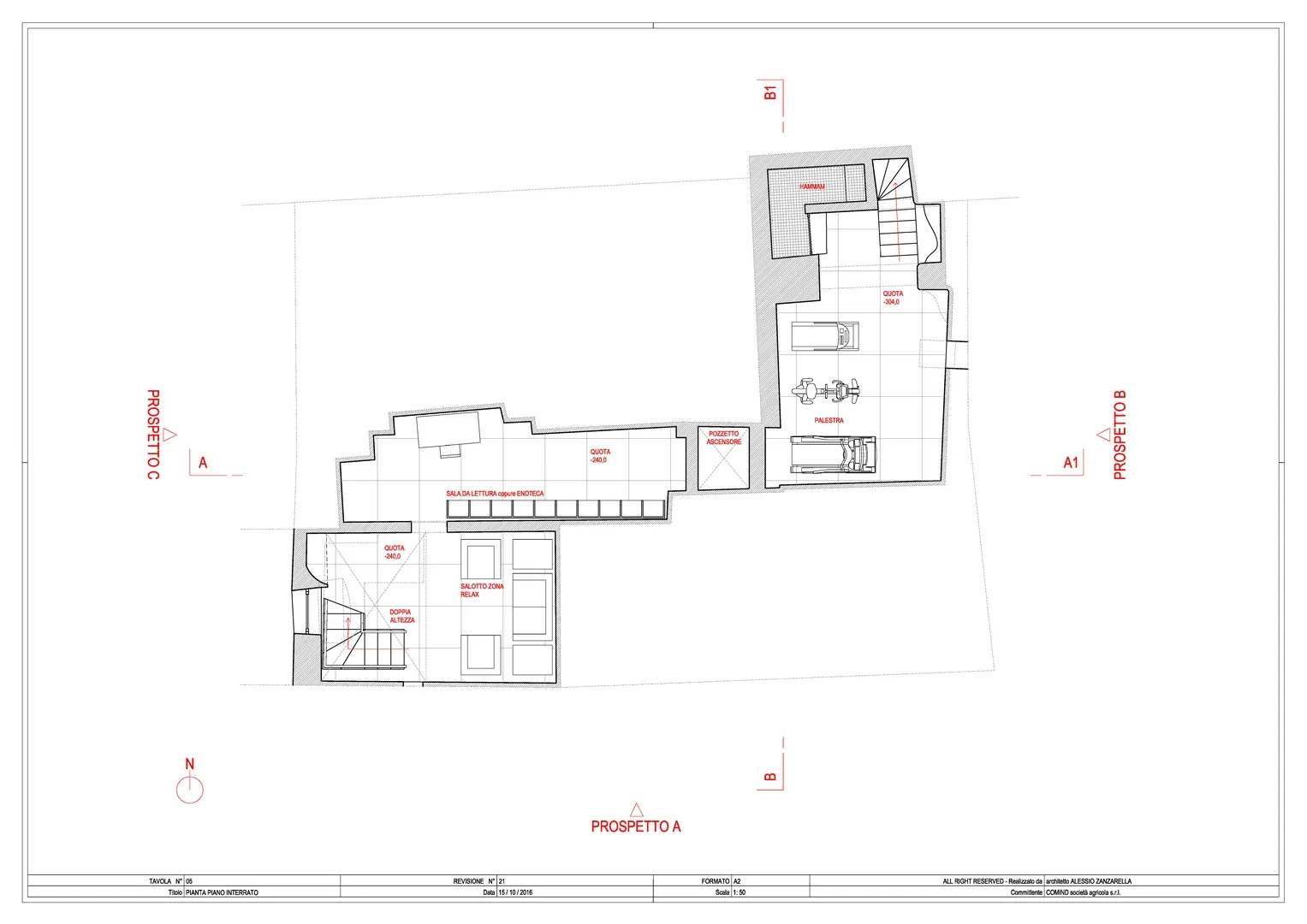
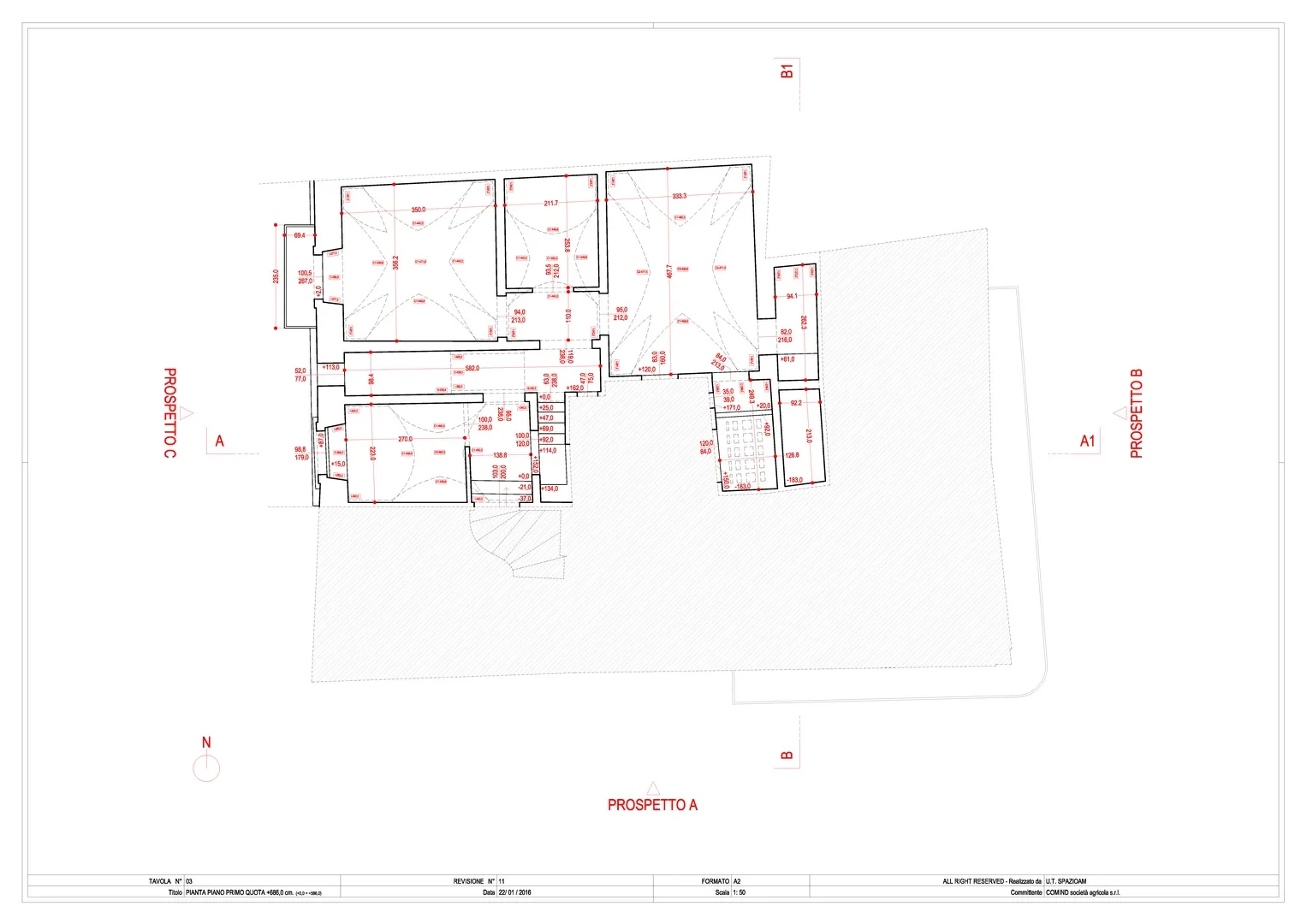
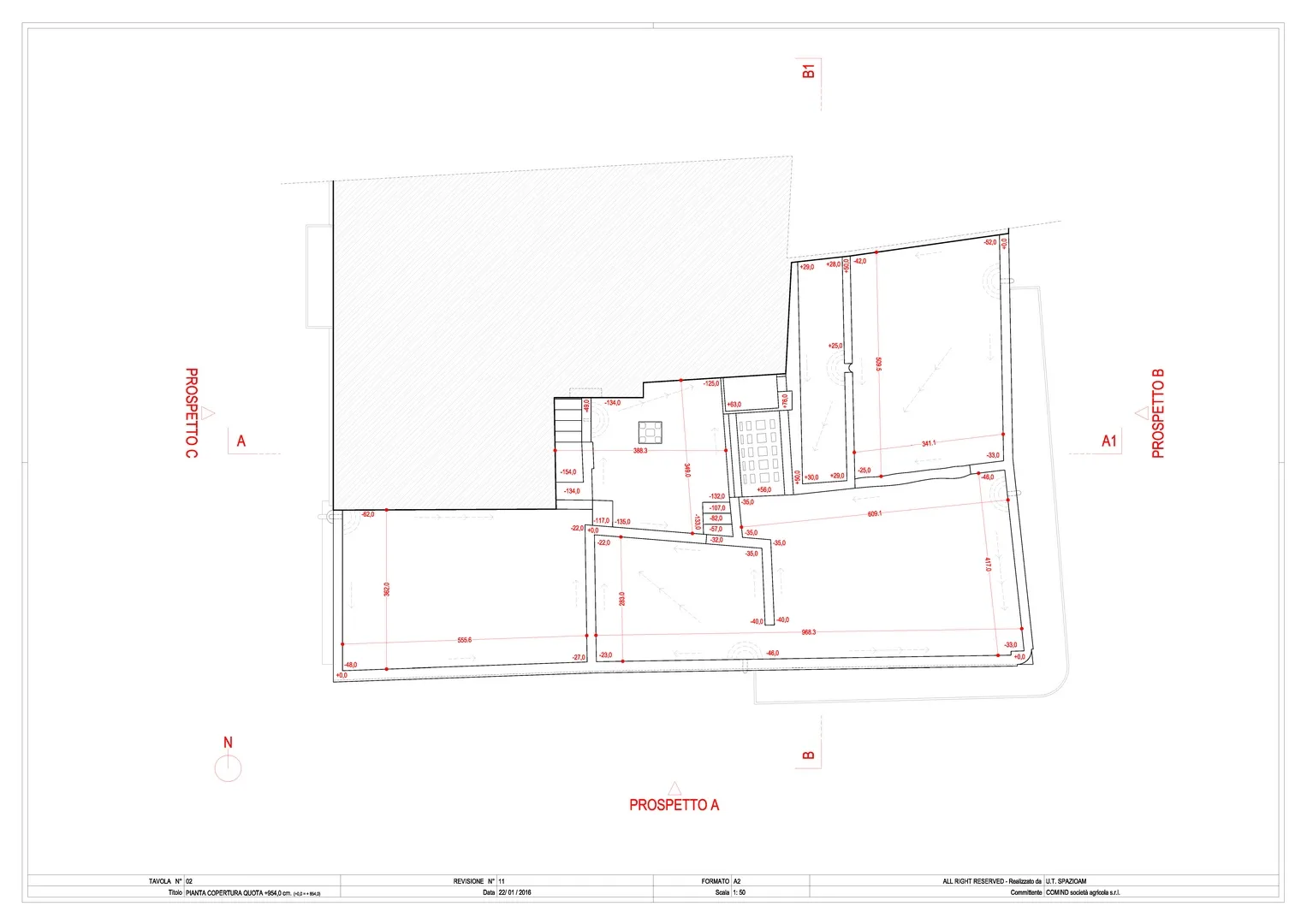
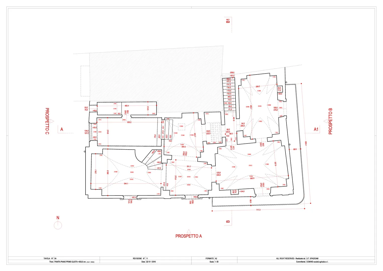
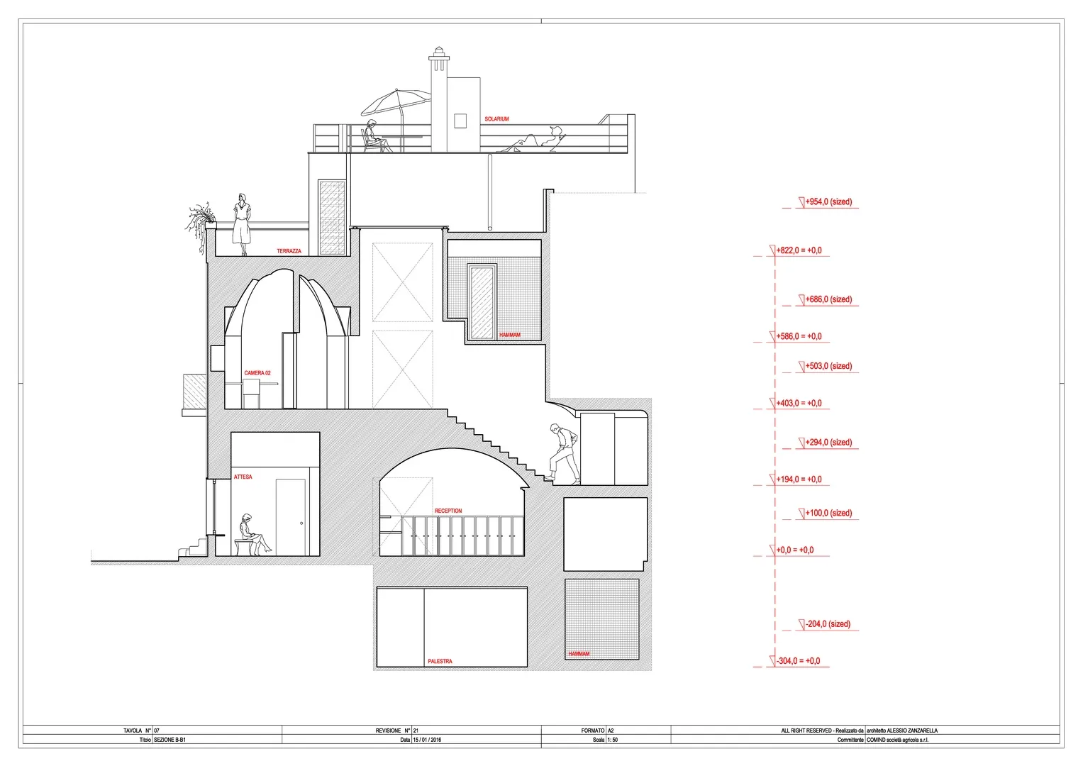
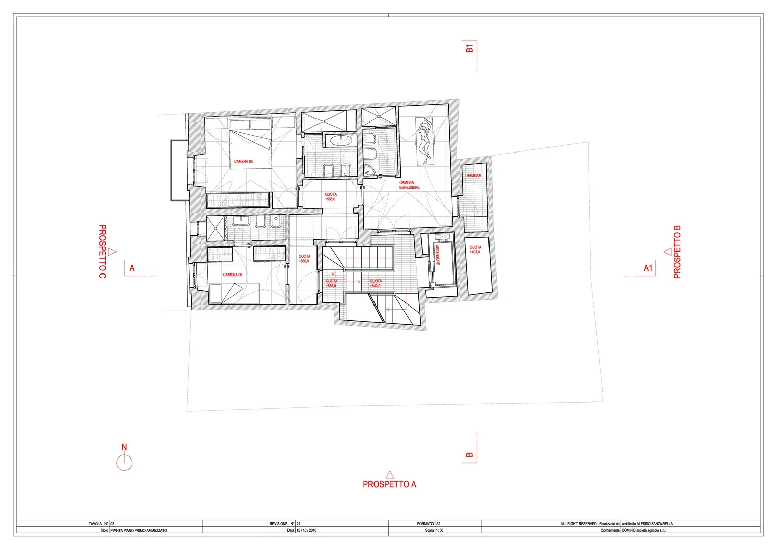
Effettuata la consegna del progetto di riqualificazione e riconversione in attività ricettiva dell'edificio storico di VIA CARROZZO, una strada prospiciente la Torre dell'Orologio (Manduria - TA). L'architetto Zanzarella in collaborazione con spazioAM ha effettuato le operazioni di rilievo, misurazione e digitalizzazione cad: un'attività piuttosto complessa trattandosi di un edificio apparentemente molto semplice all'esterno, ma notevolmente articolato all'interno, sia in pianta che in sezione. Successivamente il progetto curato interamente dall'architetto, secondo volere del committente, doveva prevedere la definizione di spazi ricettivi in alcuni casi autonomi (camere doppie o singole con relativi bagni) e condivisi (living, palestra, zona relax e solarium).  

news

siri-concept

03 March 2012

SIRI CONCEPT

Proposta di riconfigurazione di un living per una abitazione a Fucecchio (FI). Caratteristica del co...

Continua...

vai all'archivio