about > Portfolio > ATTICO SABRINA

ATTICO SABRINA

ATTICO SABRINA

nome progetto

ATTICO SABRINA

categoria progetto

HOUSE

luogo

ORIA (BR)

completamento

GIUGNO 2021

CREDITS

progetto architettonico

ARCH. ALESSIO ZANZARELLA

direttore lavori

ARCH. ALESSIO ZANZARELLA

foto

LA GALERIE - studio fotografico

pavimento parquet

WOODCO

fornitura pavimento parquet

OLIVIERI CERAMICHE (Avetrana)

posa pavimento parquet

FIDELIA (Matera)

porta scorrevole

RIMADESIO

fornitura porta scorrevole

MUTINATI (Matera)

rivestimenti bagno

LAMINAM

fornitura rivestimenti bagno

OLIVIERI CERAMICHE (Avetrana)

trasformazione rivestimenti bagno

OLMOLAB (Avetrana)

cartongessi

SCAGLIOSO (Sava)

falegnameria integrata

MATERIKA (Ostuni)

illuminotecnica

KINOWORKSHOP (Taranto)

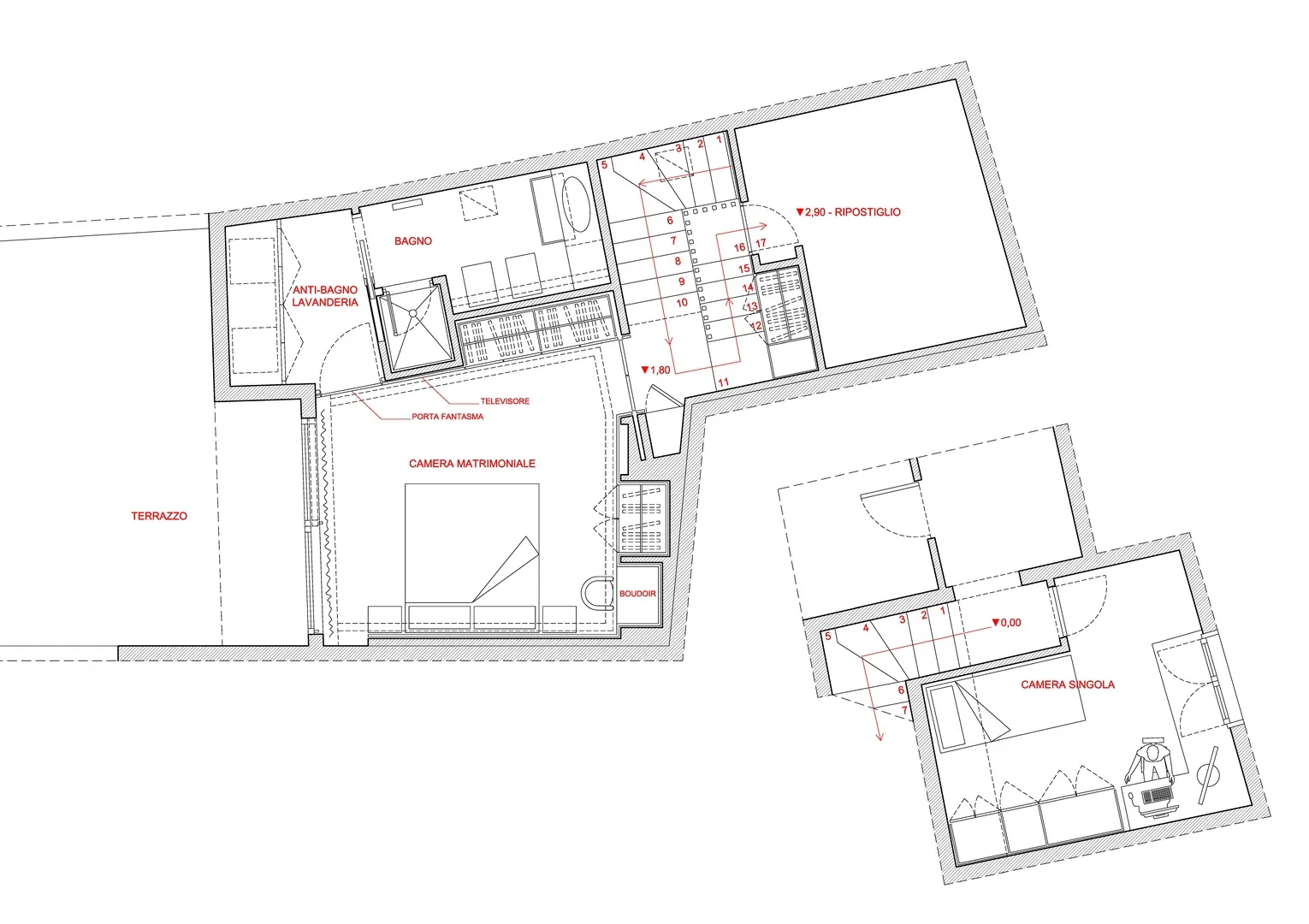
ATTICO SABRINA è un appartamentino collocato nel Centro Storico di Oria, ricavato in una mansarda e concepito come fosse una piccola imbarcazione, in cui emerge tutta la passione e l’esperienza in ambito yacht design che ha caratterizzato la mia carriera professionale da architetto negli anni in cui ho vissuto e lavorato a Viareggio.

Attraverso la scala rivestita con bianco assoluto lucidato e caratterizzata da segna-passo led progettati su misura e incastonati nello spessore del battiscopa (vedi LINK con tutte le informazioni sulla scala), si accede alla camera da letto. L’ultima rampa è delimitata sul lato aperto da un diaframma di listelli in legno a tutta altezza e sul lato chiuso da armadiature “a muro”; percorrendo questi gradini si giunge al livello più alto adibito a comodo ripostiglio contenitivo. Una volta entrati nella camera, passando da una porta scorrevole (Velaria by Rimadesio), le cui ante possono essere alloggiate sia a destra che a sinistra nelle armadiature integrate, si ha la percezione che lo spazio si “dilati”; il ribassamento in cartongesso, realizzato per uniformare le anomale articolazioni del tetto di copertura, definisce un piano, dalla forma trapezoidale, “staccato” dalle pareti grazie ad una gola luminosa perimetrale. Tra le due superfici, il pavimento in parquet di rovere “a spina francese” by Woodco (vedi LINK della posa in opera del parquet) e il controsoffitto, si genera una tensione, accentuata dalle linee verticali disegnate dai rivestimenti “boiserie” in legno realizzati da Materika: un ritmo alternato di fasce verticali in legno trattate al naturale oppure laccate (colore RAL 9010 finitura soft touch opaca), scandiscono lo spazio e le sue funzioni (ante degli armadi, zona tv, testiera, bodoire, grillage degli impianti) a ri-marcare il dualismo orizzontale/verticale delle linee presenti nel resto dell’appartamentino.

Una di queste superfici è la “porta fantasma” che permette di accedere ad una piccola zona lavanderia e allo splendido bagno firmato Olivieri Ceramiche, rivestito con lastre grande formato, della collezione “fokos sale” by Laminam (vedi LINK del bagno).

In questo progetto ho tentato di delineare un prefetto equilibrio, assecondando le richieste della cliente, la cui esigenza principale era di sfruttare al massimo lo spazio a disposizione, integrando gli elementi contenitivi e armadi nell’architettura. Il risultato è un’elegante armonia tra ciò che si vede e ciò che non si vede, un aspetto che costituisce un marchio di fabbrica dei miei progetti.

Di seguito alcuni schemi planimetrici e tridimensionali.

A seguire, alcune immagini della cantierizzazione.

portfolio in evidenza

portfolio