nome progetto
CASA DELI
categoria progetto
HOUSE
localizzazione
LA SPEZIA (SP)
completamento
FEBBRAIO 2014
progetto architettonico
ARCH. ALESSIO ZANZARELLA
direttore lavori
ARCH. ALESSIO ZANZARELLA
contract
EPOKE SRL (Viareggio - LU)
Nel luglio 2013 prende avvio il cantiere di CASA DELI (vedi LINK dell'avvio del cantiere), una piccola residenza di proprietà di un giovane chef di La Spezia. L’incarico mi è stato affidato direttamente dalla società Epoke, con cui collaboro da anni e che è stata scelta per la realizzazione dei lavori chiavi in mano. In questo articolo presenterò, come di consueto, tutte le fasi del processo realizzativo. Partiremo dai disegni tecnici e dai rendering sviluppati in collaborazione con spazioAM.
Proseguiamo con le foto delle demolizioni, in cui si può comprendere bene l’estensione della piccola residenza, la quale presenta uno spazio compartimentato che fin da subito ho pensato di convertire in un open-space. Si vedrà successivamente che l’eliminazione delle partizioni interne ha permesso di restituire continuità visiva e funzionale all’ambiente, valorizzando la luce naturale e rendendo gli spazi più fluidi e vivibili. Questa fase si è rivelata fondamentale per ridefinire l’identità dell’abitazione, trasformando un insieme di ambienti separati in un unico spazio armonico e contemporaneo.
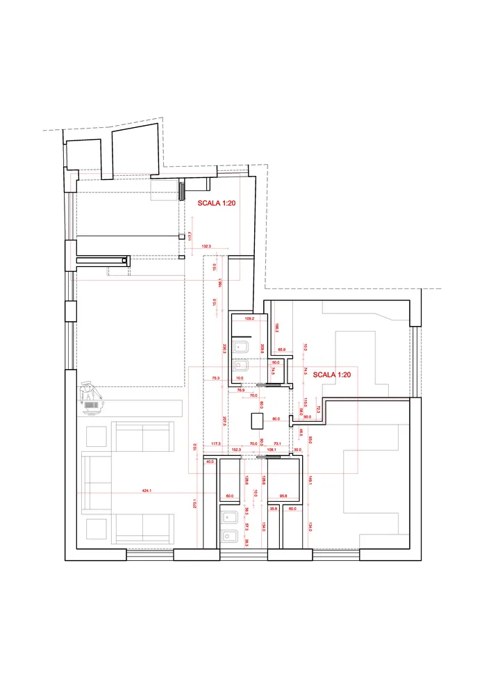
Durante le lavorazioni di muratura ho dovuto prestare particolare attenzione alla definizione dei fili fissi di cantiere, trattandosi di un progetto in cui anche la posa della muratura richiedeva una precisione millimetrica. Per gestire al meglio questa fase, ho spesso ricreato un piccolo “angolo ufficio” direttamente in cantiere, così da poter verificare in tempo reale che l’avanzamento dei lavori fosse perfettamente coerente con quanto previsto dal progetto. Già dopo aver completato intonaci e massetti, le forme del progetto sono ben visibili.
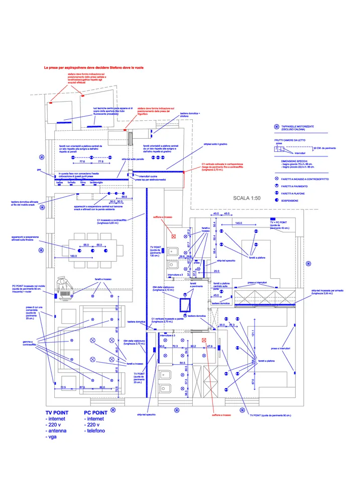
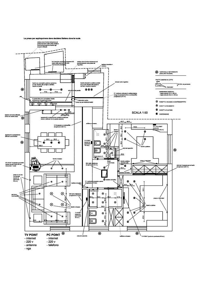
Dato che il progetto è stato concepito per garantire la massima versatilità nella posa degli impianti, prevedendone il passaggio all’interno di un controsoffitto in cartongesso, le immagini illustrano proprio questa fase operativa. Si tratta di un momento particolarmente delicato: sebbene quanto visibile rappresenti solo un passaggio preliminare (poiché la posizione definitiva di uscita dei corrugati viene stabilita solo dopo la realizzazione del controsoffitto) è comunque essenziale prestare grande attenzione. Risulta infatti fondamentale supportare adeguatamente gli impiantisti, affinché possano operare in modo fluido, senza incertezze nella configurazione dei cablaggi.
A un certo punto, l’avanzamento del cantiere ha subito una significativa accelerazione: nel giro di poche settimane sono stati completati pavimenti, cartongessi e pitture. Durante una visita in cantiere ho finalmente potuto apprezzare in modo più concreto la materializzazione delle mie idee progettuali. In una delle foto si intravede anche la proprietaria della residenza, visibilmente colpita dalla “lingua verde”, elemento architettonico distintivo e fortemente caratterizzante dell’intervento (vedi LINK della relativa news). Altri scatti di questa fase mettono in evidenza la grande operosità di tutte le maestranze, coordinate da Epoke, oltre ad alcuni dettagli costruttivi degni di nota, come le gole realizzate in prossimità del pilastro del disimpegno e l’apertura della cucina, dove sarà collocato il bancone snack.
Di seguito alcuni scatti del montaggio generale dell'impianto domotico bticino.
Tengo particolarmente a mostrare, anche attraverso le prossime immagini, quanta dedizione e precisione siano necessarie da parte degli operai affinché ogni elemento venga montato correttamente. In questo caso, ad esempio, uno degli operai è impegnato nell’illuminazione delle gole adiacenti al pilastro del disimpegno. In origine, avrei voluto rivestire il pilastro con una superficie a specchio, così da annullarne completamente la percezione geometrica. Tuttavia, per una serie di vincoli legati al budget, la soluzione realizzata è stata diversa: ho scelto di inserire due gole in corrispondenza dell’attaccatura al solaio, rendendole luminose. Ne risultano due piccoli segni di luce, discreti ma efficaci, che aggiungono un tocco di carattere allo spazio.
Per completare la fase impiantistica, è stato infine realizzato l'elemento più distintivo del progetto: la linea di luce che incornicia la “lingua verde”. Si tratta di un profilo in alluminio con diffusore opale, incassato e complanare , attraversato da una striscia LED ad alta luminosità, capace di valorizzare e rafforzare il segno architettonico di questo elemento. Nelle immagini si intravedono già anche i primi arredi integrati, installati all’interno degli spazi da me progettati, che iniziano a definire con maggiore chiarezza l’identità complessiva dell’intervento.
Come ogni elemento della casa, anche l’angolo snack racconta una storia tutta sua. Dopo aver seguito con cura la realizzazione della muratura dedicata a questa porzione dell’ambiente, ho chiesto alle maestranze di costruire il bancone su misura, rilevando direttamente in cantiere le sagome tramite fasce di registro. Il risultato è un mobile pensato nei minimi dettagli: oltre allo spazio dedicato agli sgabelli, presenta una porzione a giorno che lascia intravedere il fondo colorato della muratura verde su cui poggia, creando un piacevole dialogo tra arredo e architettura.
Anche l’angolo TV è stato progettato come parte integrante delle geometrie dell’ambiente. In questo spazio ho ideato un mobile basso su misura, perfettamente integrato nella muratura, valorizzato da una elegante gola luminosa superiore che diffonde una luce morbida con effetto wall-washing. Dedico sempre particolare attenzione alle dimensioni del mobile TV: la sua altezza, infatti, è determinante per garantire un corretto centro di osservazione dello schermo. Questo deve essere accuratamente calibrato in relazione sia alle dimensioni del televisore sia alla distanza del divano frontale, al fine di assicurare il massimo comfort visivo. Di seguito sono illustrate tutte le fasi di realizzazione del progetto.
In conclusione, vengono presentate ulteriori immagini relative alla realizzazione in laboratorio della cucina e al suo successivo montaggio nella residenza. Sono inoltre documentati i divani realizzati artigianalmente e fotografati nella loro collocazione definitiva, uno dei due bagni, caratterizzato da linee essenziali, un ulteriore mobiletto integrato nella muratura (quello adiacente alla porta di ingresso all'appartamento) e alcuni arredi della camera da letto, anch’essi progettati e realizzati su misura.
Questo cantiere ha rappresentato per me una testimonianza concreta di come sia possibile realizzare un intervento di qualità anche con risorse economiche limitate. Ciò che fa davvero la differenza è uno studio più approfondito e una maggiore attenzione ai dettagli, affinché anche gli elementi più semplici possano risultare affascinanti. Come per ogni cantiere che porto a termine (vedi LINK del completamento), mi auguro che il prossimo progetto sia ancora più stimolante e ricco di nuove sfide.
♥Aggiornamento del 16 febbraio 2014: vedi al seguente LINK il video-shorts del progetto CASA DELI, appena pubblicato su youtube.
♥Aggiornamento del 24 febbraio 2014: vedi al seguente LINK il video case history del progetto CASA DELI, appena pubblicato su youtube.
29 luglio 2013
Ci siamo! Finalmente è stato avviato il cantiere CASA DELI. Dopo le esperienze di laboratorio NAIKA (vedi LINK) e di CASA GIOVANNINI (vedi LINK) continua la mia collaborazione con la società Epoke, nominata per eseguire i lavori chiavi in mano anche in questa piccola residenza di proprietà di un giovane chef di La Spezia. Nella galleria ho inserito alcuni disegni tecnici, i renderin...
Continua...
21 novembre 2013
Penso spesso al fatto che è davvero difficile introdurre segni architettonici negli interventi residenziali. Perché un determinato "segno" per me può avere un'importanza anche rilevante nella sua dimensione architettonica; ma il proprietario di casa dovrà convivere un bel pezzo della sua vita insieme a quel "segno". Per noi architetti non è quindi così semplice introdurre la nostra semantica ...
Continua...
08 febbraio 2014
Dopo soli 6 mesi di cantiere (vedi LINK dell'avvio), CASA DELI è finalmente pronta per essere vissuta. Nonostante un budget limitato, il lavoro di squadra ha fatto la differenza, permettendo di raggiungere un risultato di grande qualità. I segni architettonici pensati per questo intervento sono oggi ben evidenti e definiscono con forza l’identità di questa residenza domotica. Fondamentale anche il...
Continua...