nome progetto
GG.HOUSE
categoria progetto
HOUSE
luogo
SAVA (TA)
completamento
NOVEMBRE 2015
progetto architettonico
ARCH. ALESSIO ZANZARELLA
direttore lavori
ARCH. ALESSIO ZANZARELLA
collaboratore
SPAZIO AM (Sava - TA)
impresa edile
C.M.S. DI SARACINO MARCELLO (Sava - TA)
finiture
LIPPOLIS (Francavilla F. - BR)
rivestimenti in gres
ROMITA (Modugno - BA)
Il percorso di GG.house è stato caratterizzato da significative complessità sin dalle fasi iniziali. L'attività progettuale che racconto in questo articolo, riguarda infatti il proseguimento di un progetto già avviato, del quale erano state realizzate le strutture in cemento armato sotto la direzione di un altro tecnico.
La nuova costruzione consisteva in un volume di collegamento tra due corpi di fabbrica distinti: da un lato l’edificio su due livelli (piano terra e primo piano) affacciato su via San Cosimo, dall’altro il fabbricato padronale, articolato anch'esso su più livelli. Il nuovo volume includeva principalmente un vano scala, un vano ascensore e una serie di livelli intermedi sfalsati, progettati dal precedente tecnico per connettere le diverse quote esistenti.
A seguito delle operazioni di scasseratura, tuttavia, il cliente si è trovato di fronte ad una serie di disallineamenti, sporgenze e anomalie che, se non opportunamente risolti, avrebbero compromesso la qualità estetica dell’intervento, in particolare nella fase delle finiture. Considerata la necessità di ottenere spazi di elevata qualità, mi è stato pertanto affidato l’incarico di riprogettare il volume già realizzato, limitando al minimo le demolizioni e intervenendo invece con precisione per correggere le criticità esistenti e migliorare l’esito architettonico complessivo.
L’edificio originario prospiciente via San Cosimo, caratterizzato da due livelli con coperture voltate, rappresentava un elemento di grande valore storico e formale. Al contrario, il nuovo volume risultava privo di coerenza compositiva e fortemente disconnesso rispetto alla preesistenza. Il mio intervento si è quindi concentrato sulla trasformazione e sul completamento dell’opera, attraverso una riconfigurazione generale dell'assetto architettonico dell'intero corpo di fabbrica, con l’obiettivo di ristabilire un rapporto armonico e coerente.
I PRIMI SOPRALLUOGHI
Il dover intervenire su uno stato di fatto non progettato da me ha comportato una significativa complessità progettuale. Dalle fotografie riportate di seguito è possibile osservare le condizioni dei lavori al momento del mio primo ingresso in cantiere (vedi LINK dei primi sopralluoghi). Inoltre, appare evidente come il modesto prospetto del fabbricato preesistente celi in realtà un volume, quello appena realizzato ex novo, ben più consistente, ma purtroppo privo di una chiara coerenza e quindi completamente da ripensare.
A tal proposito, ho sempre provato un certo rammarico: sarebbe stato estremamente stimolante poter concepire fin dall’inizio anche le strutture in cemento armato, integrandole in modo più organico e coerente con l’intero impianto progettuale.
Come si può osservare dalle fotografie, ho dovuto eseguire, in collaborazione con SPAZIO AM, un’attenta e meticolosa rilevazione delle misure in loco, allestendo di fatto un vero e proprio ufficio di cantiere. L’obiettivo era ricostruire con precisione lo stato attuale della volumetria e analizzare nel dettaglio tutte le anomalie derivanti dall’intervento precedente.
I TEMI PROGETTUALI
Nel corso dell'attività progettuale sono state affrontate tutte le problematiche emerse nel progetto precedente, attraverso un percorso orientato a trasformare gli errori in opportunità architettoniche.
In particolare, il mio intervento ha affrontato i seguenti temi progettuali:
- la ri-configurazione del vano scala, concepito come elemento centrale di distribuzione: da un lato collega il piano terra con il piano primo, dall’altro serve la zona notte, articolandosi all’interno di una tripla altezza con piani sfalsati;
- il trattamento della balaustra del vano scala, studiata in diverse varianti materiche, tra cui solo metallo e muratura + metallo, al fine di valutarne l’impatto estetico;
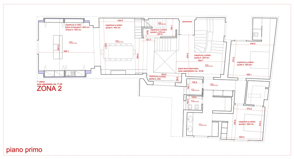
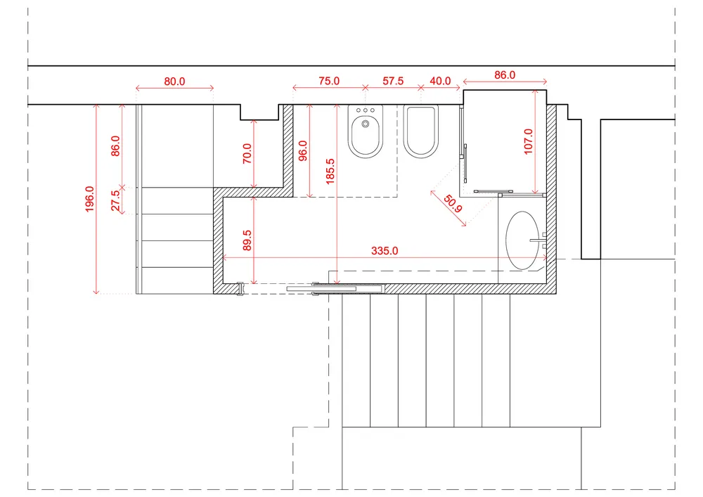
- la realizzazione di un volume a piano primo dedicato al bagno di servizio, attorno al quale si sviluppa una scala secondaria che conduce al 4° livello, destinato all’accesso al terrazzo;
- la trasformazione della finestra ad arco ribassato in porta-finestra con vetrata, per consentire un accesso diretto all’ortale, situato sul lato nord, e migliorare il rapporto aero-illuminante;
- la definizione dell’open space a piano primo, con particolare attenzione alla distribuzione funzionale delle aree camino e cucina, e alla determinazione di un dialogo coerente con lo spazio voltato preesistente;
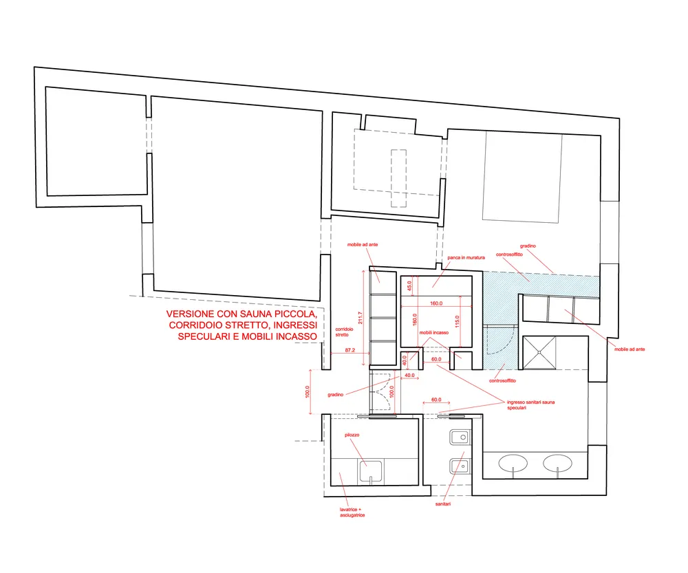
- la progettazione della zona notte, area ricadente nel fabbricato originario situato nel retro dell'edificio.
TRASFORMAZIONE DELLA FINESTRA
Una prima proposta progettuale riguarda la trasformazione della finestra ad arco ribassato, realizzata in un periodo antecedente al mio incarico. Come si evince dalle immagini, si tratta di un’apertura ricavata sulla parete prospiciente un ortale di proprietà, non altrimenti accessibile se non mediante la conversione della finestra in una porta-finestra.
Poiché il cantiere era attivo al momento della mia nomina a Direttore dei Lavori, il committente mi ha richiesto di intervenire con urgenza su tale elemento, considerato che la modifica avrebbe comportato interventi di demolizione rilevanti. La proposta evidenzia fin da subito un approccio progettuale orientato al dialogo con le forme tipiche della tradizione salentina. Nelle immagini si osserva infatti la trasformazione della parete interessata in una sorta di porticato interno, articolato in tre campate scandite da pilastri, sormontati da mezze arcate, e delimitato sul lato nord da una grande porta-finestra vetrata.
1ª SESSIONE DI RENDERING (balaustra in metallo)
L’ipotesi del porticato interno è stata abbandonata, mentre è stata mantenuta l’idea di realizzare una grande apertura sul lato nord. Nella sessione di rendering proposta di seguito, incentrata sulla soluzione con balaustra in metallo, si può osservare anche la trasformazione della finestra ad arco in una porta-finestra con vetrata, ottenuta mediante l’abbattimento della parete e il suo arretramento, così da garantire un accesso più agevole all’ortale nord. Tra le immagini è inoltre visibile il volume del bagno di servizio, ricavato al primo piano esattamente di fronte al “finestrone” dell’ortale, e la scala che lo circonda e che conduce al 4° livello.
A un certo punto il cliente mi ha chiesto di verificare se, attraverso la scala, una volta installata la balaustra, fosse possibile movimentare un divano già acquistato. Ho quindi effettuato una simulazione sfruttando le potenzialità della modellazione 3D.
Nelle immagini seguenti è illustrata l’ipotesi progettuale del piano terra, con diverse opzioni di finitura dell’arcata che separa la parte storica da quella di nuova realizzazione. È possibile osservare sia lo stato ante operam sia la sua reinterpretazione nello stato di progetto. Si evidenziano inoltre alcune valutazioni relative all’inserimento di porte antiche da installare nelle aperture esistenti.
2ª SESSIONE DI RENDERING (balaustra in muratura)
Le immagini che seguono illustrano invece l’ipotesi con balaustra in muratura e corrimano in metallo. Il percorso rendering prende avvio dalla prima rampa elicoidale e prosegue fino al raggiungimento del primo piano ammezzato. Come si può osservare, il giro della rampa è stato riprogettato riquadrando le forme esistenti e conferendogli maggiore eleganza anche attraverso l’introduzione di una fioriera.
Le immagini seguenti evidenziano come la balaustra in muratura + corrimano in metallo si sviluppa sugli altri piani e uno scorcio dell'open space del piano primo.
Nella seguente galleria possiamo invece apprezzare una ulteriore serie di rendering in cui cominciano ad essere visibili alcune scelte stilistiche del piano primo; i materiali sono più evidenziati e gli spazi maggiormente caratterizzati: ingresso zona notte, volume bagnetto con scala, finestrone ortale, zona camino/tv, zona living, zona cucina, 4° livello, etc.
Di seguito sono invece proposti alcuni ragionamenti sulla configurazione della zona camino.
GLI ELABORATI TECNICI
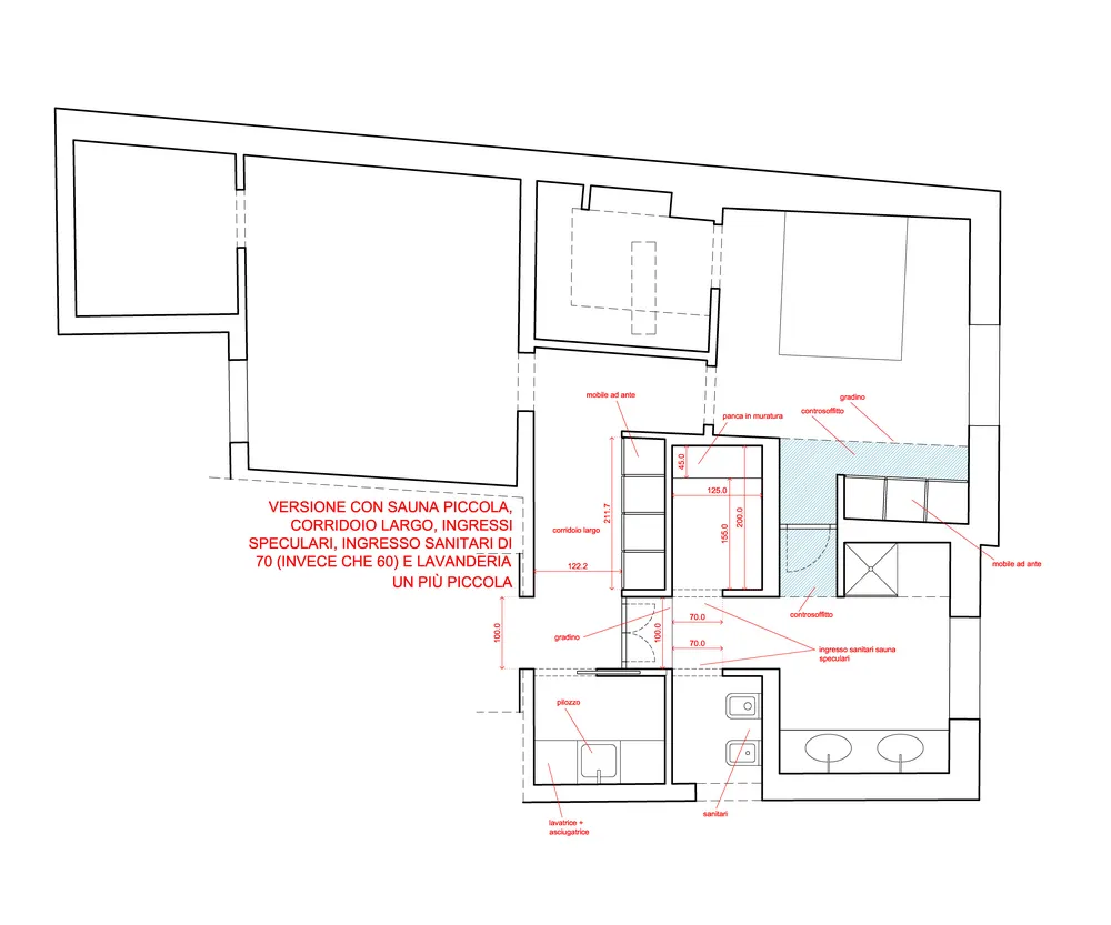
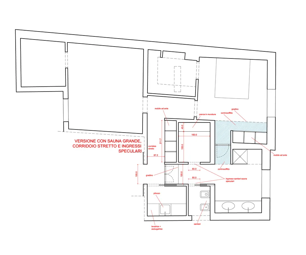
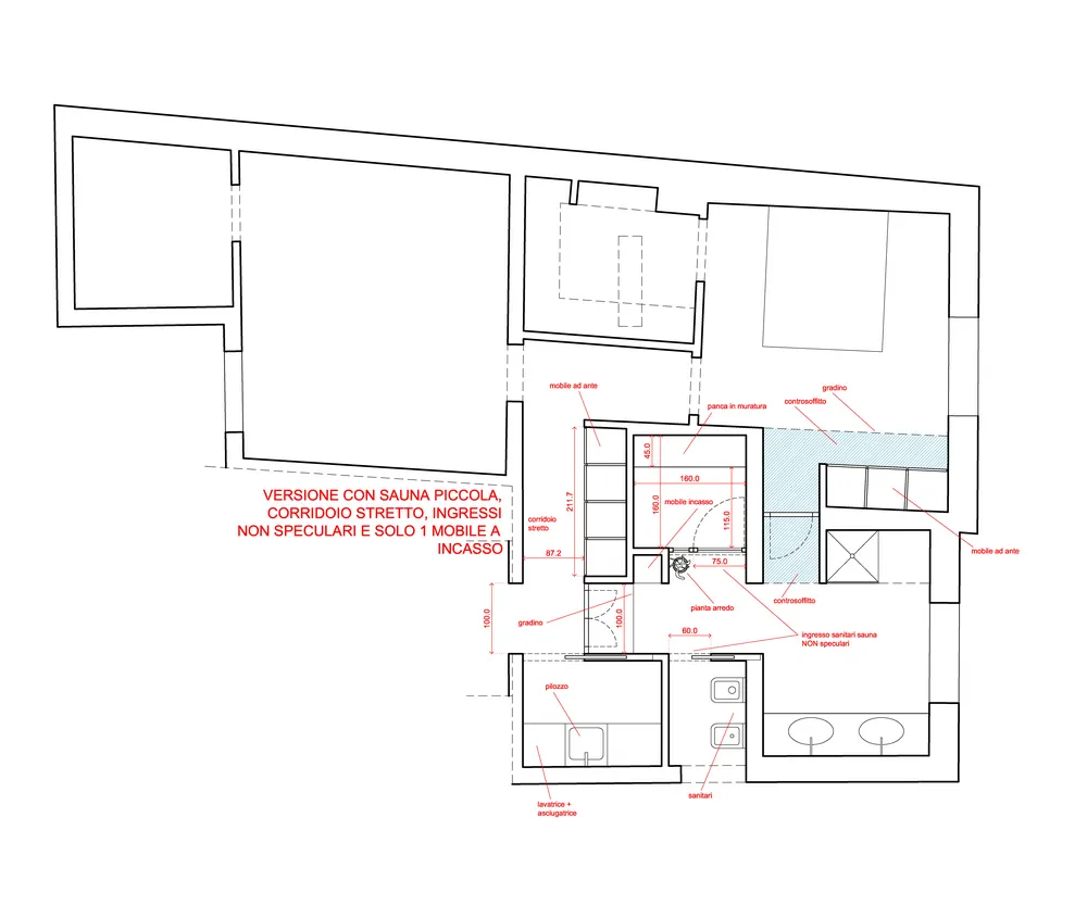
Tra le mansioni da svolgere vi era anche il progetto della zona notte, un’ala dell’edificio non ancora interessata dagli interventi di ristrutturazione precedenti al mio incarico; si trattava quindi di uno spazio completamente vergine, da ripensare in termini di configurazione e distribuzione degli ambienti. Di seguito sono presentate alcune soluzioni planimetriche elaborate per questa area, insieme a un bozzetto che illustra l’idea progettuale per l’ingresso al bagno.
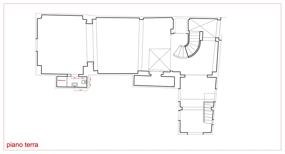
Questo è invece il progetto di un piccolo bagno di servizio ricavato al piano terra, in corrispondenza del fabbricato antico, all’interno di una cavità nello spessore murario e caratterizzato da rivestimenti firmati Mutina. La collocazione risulta particolarmente funzionale per l’inserimento del servizio igienico, grazie alla prossimità della porta di ingresso principale della residenza.
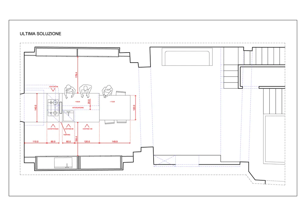
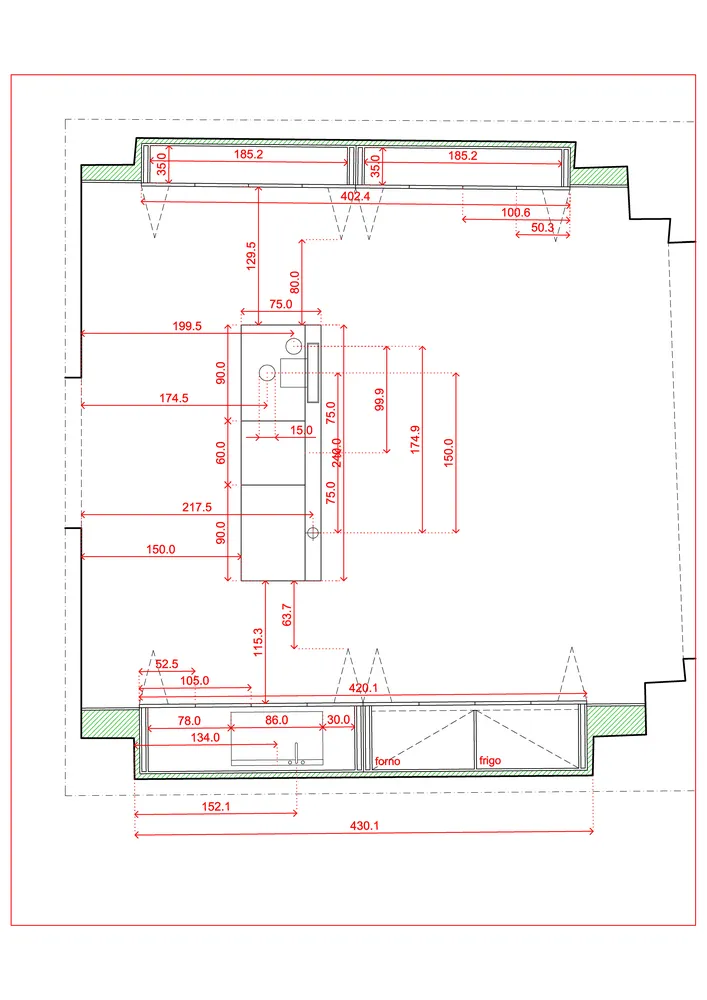
Di seguito invece varie soluzioni della zona cucina ideata nell'open space a piano primo, con isola trasversale, longitudinale e tavolo da pranzo adiacente.
Dopo le diverse progettazioni puntuali (vedi LINK della progettazione), si è infine giunti a una fase di sintesi, volta a definire in maniera preliminare gli aspetti impiantistici. A tal fine ho elaborato alcuni schemi dell’assetto generale della residenza, utili a individuare le diverse zone e le stratigrafie murarie, così da agevolare il lavoro dei tecnici impiantisti nella definizione del progetto degli impianti.
Queste sono le planimetrie dell'assetto definitivo.
Qui invece alcune bozze e disegni dell'impianto elettrico e illuminotecnico.
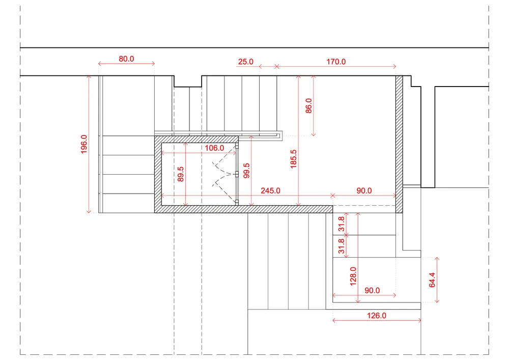
Di seguito è riportato lo schema esecutivo per la cantierizzazione, al piano primo, del bagno di servizio attorno al quale si sviluppa la scala che conduce al 4° livello.
IL CANTIERE
Di seguito vengono illustrati i passaggi realizzativi del cantiere (vedi LINK del cantiere), a partire dal bagno di servizio situato al primo piano. Dalle immagini è possibile osservare l’artificio tecnico-strutturale che ho progettato per garantire un’adeguata altezza interna al locale: una rampetta di pochi gradini a scendere, opportunamente raccordati al solaio esistente del 4° livello. Le immagini relative alla fase di completamento evidenziano come tale soluzione, pur essendo presente, risulti visivamente impercettibile. Grazie allo studio dei volumi e alla realizzazione della balaustra in muratura, l’intervento è infatti perfettamente integrato e celato all’interno dello spazio architettonico.
Qui invece è visibile l'intervento di demolizione che ho progettato a piano primo della parete divisoria con la parte storica e la creazione dell'arcata a tutto sesto. Quest’ultima diventa un elemento architettonico centrale che suggella e valorizza la definizione del nuovo open space, mettendo in relazione armonica i diversi ambienti e conferendo continuità visiva e spaziale all’intero livello.
Nonostante l’elevato livello di accuratezza dei modelli tridimensionali, la fase di cantierizzazione del “finestrone” in corrispondenza dell’uscita verso l’ortale nord si è rivelata particolarmente complessa. Come anticipato, l’intervento prevedeva la trasformazione della preesistente apertura ad arco ribassato (risalente al precedente assetto progettuale) in una porta-finestra con vetrata, al fine di garantire l'accesso diretto e funzionale all’ortale. Come documentato dalle immagini, la parete interessata dall’apertura originaria è stata completamente demolita, mantenendo unicamente lo scheletro strutturale. Per rendere possibile la creazione del nuovo varco di accesso, si è resa necessaria una traslazione della posizione della nuova parete perimetrale, accompagnata dalla progettazione di una trave armata sotto traccia, destinata a sostenere la sovrastante muratura. Contestualmente, si è intervenuti anche sul piano terra mediante uno spessoramento della parete, così da ottenere i circa 90 cm minimi indispensabili per la realizzazione del passaggio. L’insieme di queste operazioni ha consentito di risolvere le criticità strutturali e distributive, garantendo al contempo coerenza architettonica e funzionale all’intervento.
Il lucernario, originariamente concepito nel progetto precedente al solo scopo di illuminare la tripla altezza del vano scala, entra ora in relazione diretta con le nuove linee del “finestrone”, ponendosi in continuità con il volume di luce generato. Questa soluzione consente una piena integrazione dell’elemento all’interno del sistema spaziale, contribuendo a rafforzare l’idea di un volume immateriale definito dalla luce, capace di unificare e valorizzare percettivamente l’intero ambiente.
Nelle immagini seguenti è possibile osservare la ribattitura dell’ultima rampa che conduce al piano primo, progettata in funzione dei nuovi allineamenti di quota introdotti dal nuovo progetto. Sono inoltre documentate le operazioni di rimassettamento e alcune fasi del completamento dello strato autolivellante.
In questa sessione di immagini, alcune fasi della stesura del pavimento radiante e dell'autolivellante.
Un ulteriore aspetto di particolare complessità ha riguardato la progettazione della prima rampa elicoidale. Oltre ad aver sviluppato diverse soluzioni per il corrimano, è stato necessario definire con precisione la sua integrazione in corrispondenza dell’affaccio sul piano interrato. A tal fine, è stata progettata una riquadratura della struttura che, lungo il giro della rampa, ha generato un prolungamento del pianerottolo. Questa soluzione, inizialmente, è stata anche interpretata come possibile fioriera in una delle ipotesi progettuali, successivamente non adottata.
La criticità maggiore ha tuttavia riguardato la definizione dell’andamento della balaustra in muratura e il coordinamento con le maestranze, spesso impegnate in lavorazioni che richiedevano una precisione millimetrica. Nonostante le difficoltà esecutive, come evidenziato nelle immagini finali, la rampa elicoidale e la continuità del corrimano in muratura ai vari livelli risultano risolti in modo efficace, restituendo un esito coerente e di elevata qualità architettonica.
Di seguito alcune immagini dell'ortale nord, trattato con cemento stampato.
Il bagno e l’hammam, interamente rivestiti in gres grande formato (così come alcune pareti dell'open space che abbiamo già visto in precedenza), amplificano anche nella zona notte quell’accento luxury che costituisce il filo conduttore dell’intero intervento progettuale. Anche qui, l’identità del progetto viene costantemente ribadita, emergendo con chiarezza attraverso un linguaggio architettonico controllato e unitario. In generale, la continuità materica e il rigoroso mood-board, composto da poche e calibrate declinazioni, contribuiscono a definire ambienti eleganti e immersivi, ma soprattutto coerenti.
Dopo aver ripercorso tutti i passaggi di GG.HOUSE (vedi LINK del completamento), ho quasi la sensazione di averli raccontati a uno dei miei maestri degli anni universitari. Forse è un modo per cercare quella stessa forma di confronto e di riconoscimento, a fronte dell’enorme lavoro e dell’entusiasmo che ho dedicato a questo straordinario progetto.
Un processo intenso, fatto di scelte, complessità e continua messa a punto, che oggi restituisce un esempio concreto del mio linguaggio: la morfologia degli elementi, le geometrie, la pulizia formale, gli allineamenti, rappresentano nel loro insieme le componenti che trasformano uno spazio in architettura.
♥Aggiornamento del 09 gennaio 2016: vedi al seguente LINK il video-shorts del progetto GG.HOUSE, appena pubblicato su youtube.
17 settembre 2013
Nel mentre sono impegnato in un altro cantiere a La Spezia (vedi LINK), sono stato finalmente incaricato di gestire il progetto di una residenza nella mia città d’origine: Sava. Prende così ufficialmente avvio il cantiere GG.HOUSE....
Continua...
10 maggio 2014
Dopo mesi di rilievi accurati e misurazioni sul campo (vedi LINK dell’avvio del cantiere), e a seguito di una progettazione mirata sulle reali esigenze del cliente, posso finalmente dire che il progetto di GG.HOUSE è giunto a compimento....
Continua...
22 settembre 2014
Ormai il cantiere di GG.HOUSE è entrato nel vivo (vedi LINK della fase di progettazione). È stato realizzato il volume del bagnetto al primo piano, attorno al quale si sviluppa la scala che conduce al quarto livello, in corrispondenza del quale si può osservare l’artificio tecnico-strutturale progettato per garantire un’adeguata altezza interna al bagnetto: una breve rampa di pochi gradini in disc...
Continua...
08 novembre 2015
Un cantiere che mi ha accompagnato per oltre due anni, guidato sempre da un pensiero costante: raggiungere la bellezza! La bellezza è un concetto complesso, profondamente soggettivo. Non è mai scontato che la visione del progettista coincida perfettamente con quella del cliente. Eppure, in GG.HOUSE, credo sia oggettiva ed evidente l’attenzione che ho dedicato ad ogni singolo dettaglio. Tre element...
Continua...