about > Portfolio > RS.HOUSE

RS.HOUSE

RS.HOUSE

nome progetto

RS.HOUSE

categoria progetto

HOUSE

localizzazione

PIETRASANTA (LU)

completamento

OTTOBRE 2011

CREDITS

progetto architettonico

ARCH. ALESSIO ZANZARELLA 

direttore lavori

ARCH. ALESSIO ZANZARELLA 

foto

DANIELA LAZZARESCHI (Capannori - LU)

consolidamenti

PASQUALE DEL PRETE (Marina di Pietrasanta - LU)

cartongessi

CIRO COZZOLINO (Viareggio - LU)

sistemi hi-tech

EPOKÈ (Viareggio - LU)

Per RS.HOUSE ho creato un nuovo spazio abitativo originato dal collegamento di due piccole e dismesse unità immobiliari (una abitazione di 40 mq e un vecchio ufficio di 18 mq) attraverso la formazione di un connettivo in corrispondenza del pianerottolo condominiale. Oltre a comporre uno spazio completamente nuovo e stravolto rispetto alla configurazione precedente, sono stato molto attento a "ripulire" gli ambienti da superfetazioni materiche, portando in luce la vera essenza della struttura antica e valorizzandone alcuni elementi originari (pareti faccia vista in opus incertum, soffitti in legno e "mezzane"). La sostenibilità del progetto RS.House è una "sostenibilità concettuale" che risiede proprio in questo dualismo:

- il ri-disegno dello spazio, come risposta ad esigenze di un vivere contemporaneo;

- la conservazione di contenuti e linguaggi storici riportati in luce.

Il risultato è uno stile sostenibile, ma proprio per questo un NON-STILE. Progettare in modo sostenibile significa proprio rinunciare a mode o stereotipi attualizzati, vuol dire dare risposte concrete ai due soggetti protagonisti: il committente e lo spazio. Anche lo spazio ha un'anima, una storia, una vita che deve essere tramandata; l'architetto ha il compito di preservare questa vita.

Come già descritto nell'articolo del completamento dei lavori (vedi LINK), i principali dettagli di questo delicato intervento sono: il disegno delle pareti faccia vista (opus incertum toscano) vs. intonaco; le superfici a specchio per il MIRROR TV, per lo sportello del vano caldaia, per l'armadio in camera; l'angolo camino sovrastato dal vano del MIRROR TV e caratterizzato da una cornice in marmo bianco di carrara integrata in un mobile con ripiani laccati di colore bianco opaco; la maniglia di marmo e strass swarovski (già descritta nel precedente articolo); l'angolo cucina che sembra sospeso, per mezzo di una lineare incassata nel gradino; i controsoffitti, disegnati per occultare le travi di rinforzo e scandire un ritmo geometrico; il trattamento faccia vista della muratura anche in corrispondenza di uno dei due bagnetti; gli infissi con scuretti, disegnati alla "toscana"; la doccia bifacciale con apertura sia verso il bagnetto che verso la camera da letto; l'utilizzo di marmi pregiati ("calacatta", "bianco P" e "supreme noir").

I bozzetti preliminari

Di seguito alcune immagini dei bozzetti realizzati preliminarmente (già proposti nell'articolo dei bozzetti), nei quali si evince in particolar modo: l'attenzione prestata all'aspetto delle finiture; la quasi ossessione a sfruttare al massimo ogni centimetro; l'idea di concepire lo spazio in modo che la luce naturale penetrasse dall'esterno per renderlo più luminoso possibile.

La committente

La proprietaria della casa è la dott.ssa Rosaria Sommariva, giovane ed affermata dentista versiliese, che lavora presso la clinica dentistica Santa Apollonia di Lucca ma ha scelto Pietrasanta come luogo dove trascorrere serenamente la propria vita domestica. Una scelta "moderna" e "sostenibile", congruente ad uno stile di vita salutare, lontano dal caos della vita frenetica di ogni giorno. Nel suo piccolo appartamento Rosaria, trova ogni giorno la sua dimensione, misurandosi e rapportandosi con uno spazio sobrio, ma profumato di storia e sapori genuini. Dalle finestre della sua casetta, può scorgere ogni giorno le alture prossime che contornano la Versilia e sentirsi parte di un contesto ambientale puro.

Lo stato ante-operam

Originariamente le due unità dismesse si presentavano in questo modo.

Contesto

L'abitazione è situata nel centro storico di Pietrasanta, caratteristica cittadina medievale, importante centro turistico della Versilia, famosa a livello mondiale per la lavorazione del marmo (già a partire dal '500 con Michelangelo Buonarroti) e per la lavorazione del bronzo. Nelle fonderie di bronzo artistico, nei diversi laboratori di marmo e di mosaico, nelle varie botteghe artigiane pietrasantine si realizzano bellissimi monumenti che arricchiscono le piazze di tutto il mondo. Denominata la "Piccola Atene", Pietrasanta è il capoluogo della Versilia storica, così ricca di monumenti da essere riconosciuta come vera e propria città d'arte. Percorrendola è come passeggiare in un museo a cielo aperto.

“Quel che mi piace è Pietrasanta: bellissima cittadina, con piazza unica, una cattedrale da grande città, e, sfondo, le Alpi Apuane. E che paese all'intorno! che monti, che verde, che ombre, che fiumi, che ruscelli risonanti freschi sotto i castagni e gli olivi fra il verde.” (Giosuè Carducci)

L'appartamento di Rosaria è situato al primo piano di un'antica palazzina, sull'angolo tra Via XX Settembre e Vicolo Porta a Lucca, di fronte alla fontana e al "paretone". Il contesto urbano in cui è collocato l'edificio è essenzialmente residenziale e interamente costituito da abitazioni, botteghe e laboratori artigianali di piccola metratura. Come si direbbe da queste parti: un "chicchino". Percorrendo la strada ci si sente avvolti da un'atmosfera unica, fatta di prospetti dai colori marcati, infissi in legno alla toscana e odore di vecchie ricette tipiche della cucina casalinga versiliese.

Di seguito alcune foto delle demolizioni e dell'attività di consolidamento dei solai (già descritti nel precedente articolo).

"Faccia vista" vs. intonaco

Una delle questioni più interessanti affrontate è la delimitazione delle porzioni che dovevano essere trattate faccia vista rispetto alle porzioni che dovevano essere intonacate. Il volere della committente di riportare in luce l'opera incerta, doveva essere controllato, gestito, in modo che il confinamento delle geometrie fosse riferito ad un disegno generale. La selezione delle porzioni da lasciare "a vista" è dipesa da un'analisi effettuata in loco dopo aver liberato le pareti dal vecchio intonaco e dopo averle sabbiate, selezionando quelle regioni che avevano un significato estetico.

Difficile è stato adattare a-posteriori tali scelte, in una condizione in cui le direttrici principali del progetto erano già state definite nel progetto preliminare. Il mio contributo è servito per riconciliare all'idea chiara originaria di partenza tutte le vicissitudini e le "scoperte" effettuate durante la cantierizzazione. Direi che questo è l'aspetto più bello del mio mestiere: reinventare e reinventarsi, ascoltando tutto ciò che ha da dire quell'entità che si chiama SPAZIO.

Le porzioni lasciate "a vista", dopo essere state sabbiate, sono state ripulite con maggiore approfondimento, eliminando con mazzetta e scalpello tutte le escrescenze dalla superficie di ogni singolo sasso e ri-commentando con malta antichizzata color terra di Siena posata a pressione con saccapoche.

I soffitti

Una componente marcata nei miei progetti (in generale) è il disegno dei soffitti. Coerentemente con l'interpretazione dello "spazio come soggetto, organismo vivente", il "corpo" dello spazio deve vivere attraverso tutto sé stesso, dal piano di calpestio al "cielo della stanza", in un richiamo continuo di proiezioni orizzontali e verticali, come vettori derivanti dallo stesso cuore vitale. Il disegno dei soffitti di RS.House si rapporta con l'architettura globale, mascherando con il cartongesso il consolidamento strutturale per volere della committente, o smascherando porzioni del vecchio solaio fatto di travicelli e mezzane. Il gioco dei rapporti tra "alto" e "basso", emoziona e ri-emoziona costantemente, dialogando con lo sguardo dell'essere umano che non si muove solo su un piano orizzontale, ma anche su un piano verticale, obliquo, trasversale.

Di seguito alcune foto durante i lavori di cartongesso effettuati per occultare le travi di rinforzo e per determinare un ritmo geometrico/architettonico.

Calacatta

La selezione di un rivestimento per il pavimento è uno step solitamente complesso. In esso vengono spesso concentrate le grandi aspettative e i sogni di una casa veramente misurata sui propri gusti. Spesso, comunemente, è più importante la scelta dei pavimenti che il progetto stesso. Quasi come se le due questioni appartenessero a due semantiche differenti. In RS.House, invece, ho semplicemente seguito i dettami del luogo, studiando il pavimento come parte integrante di un linguaggio. Tale dialettica non è "ispirazione", ma ascolto.

I due capisaldi della riflessione:

- "vicinanza" ai luoghi di estrazione di un materiale "storico" ed eterno come il marmo calacatta (tipologia di marmo dalla venatura rada);

- esigenza di un pavimento "vivibile" come il legno.

La sintesi è il tracciato di un confine che delimita due sistemi differenti:

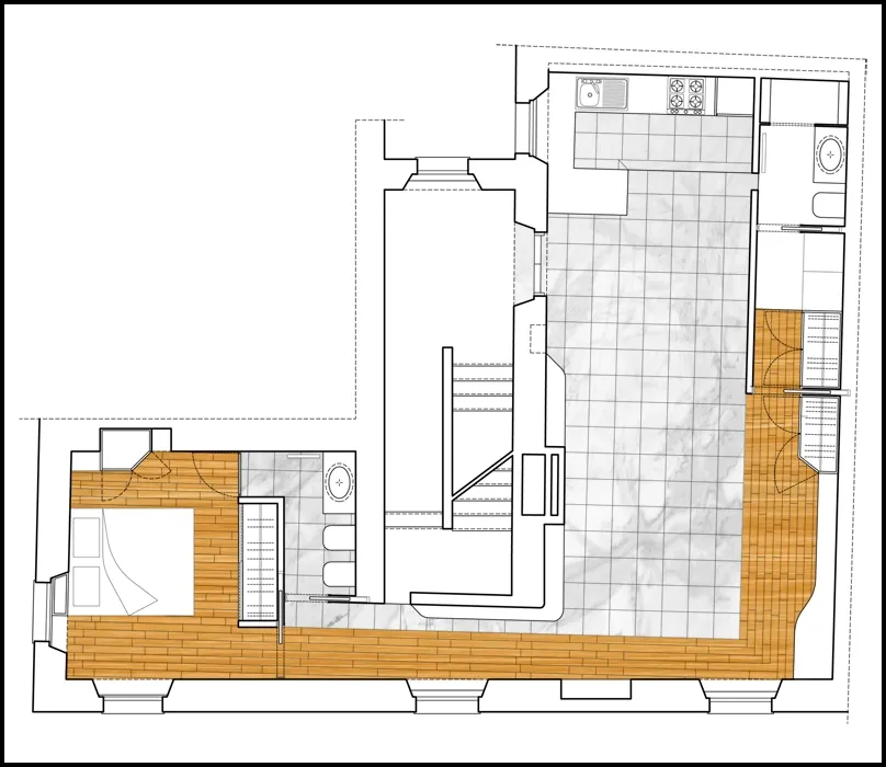
1. camera da letto + connettivo (prioritaria vivibilità notturna) rivestiti in parquet;

2. living e cucina (prioritaria vivibilità diurna) rivestiti in marmo;

e si pone come ri-affermazione del concetto di continuità dello spazio e delle geometrie del layout, ri-proiettando sul pavimento la stessa linea che governa il controsoffitto e che è una linea che attraversa tutti gli ambienti della casa.

Linee percettive

L'intero layout è stato progettato tentando di dilatare percettivamente lo spazio. In questo modo la ridotta metratura (62 mq) dell'appartamento appare più estesa. Le linee dei pavimenti e dei controsoffitti invitano lo sguardo verso la profondità, illudendolo. Il gioco delle geometrie si staglia attraverso articolazioni spaziali sviluppate secondo la logica dei layer: primo e secondo piano focale, tagliati sempre e comunque da una o più linee prospettiche.

Illuminotecnica & tecnologia

La luce genera lo spazio, dà corpo alle forme plastiche, modella le superfici dei materiali, controlla ed equilibra i tracciati geometrici. Lo spazio generato dalla luce è l'anima di questo intervento architettonico. I volumi costruiti insieme alla luce concorrono alla definizione degli spazi, generando possibili interpretazioni, attese, emozioni.

Per la progettazione illuminotecnica sono stato coadiuvato da un'azienda viareggina, leader nel settore dell'integrazione di impianti, specializzata in ambito YACHT; il nome dell'azienda è Epokè. La nostra partnership è stata fondamentale nella determinazione di nuove strategie progettuali all'avanguardia e nell'integrazione di elementi impiantistici e tecnologici.

L'intervento di Epokè ha suggerito nuovi orizzonti, nuove soluzioni anche in rapporto al risparmio energetico: la maggior parte delle apparecchiature illuminanti sono a bassa tensione (vdc). Questa è stata una "scelta di campo" che ha caratterizzato notevolmente il progetto globale; molte linee sono rimarcate dalla luce artificiale. In questo modo la luce non assolve soltanto la sua mera funzione illuminante, ma diventa elemento "didattico" che aiuta a rileggere e a comprendere con più chiarezza il layout architettonico.

Approccio tecnologico e attenzione all'intrattenimento sono rappresentati poi dal MIRROR TV, un televisore "a specchio" realizzato completamente "su misura" da Epokè e integrato all'interno del mobile in corrispondenza del camino. Il televisore collocato sopra la bocca del camino, dietro ad un pannello specchiante, è incorniciato da una piatta di acciaio cromato e coibentato da un pannello di piombo. Quando il televisore è spento non si percepisce la sua esistenza, riconfermando un desiderio di serenità e pace dichiarato più volte dalla committente. Nella parte bassa dello stesso mobile trovano collocazione (chiuse, ma comunicanti con l'esterno attraverso un trasmettitore) tutte le apparecchiature tecnologiche indispensabili all'intrattenimento: amplificatore, decoder, pc, i-pod, etc., tutte governabili mediante un solo telecomando.

NON-Stile

Nell'apparente "gioco" di stili ed eccentricità, qui tutto si frammenta e si ricompone in un quadro continuamente nuovo. Non esiste uno stile, ma l'atteggiamento giocoso del progetto deriva semplicemente dall'interpretazione del carattere di chi lo abita; in questo intervento ho cercato di "giocare" con intimità, essenzialità, con l'obiettivo di ricondurre ogni scelta ad un'idea TOTALE.

Il "taglio sostenibile" del progetto risiede esattamente in questo tema: non c'è uno stereotipo dell'abitare contemporaneo, esiste una disciplina che deve interpretarlo ... questa si chiama "architettura".

♥Aggiornamento del 02 novembre 2011: vedi al seguente LINK il video-shorts appena pubblicato su youtube.

♥Aggiornamento del 14 novembre 2011: vedi al seguente LINK il video appena pubblicato su youtube.

♥Aggiornamento del 11 aprile 2013: vedi al seguente LINK il video-shorts sulla pubblicazione di RS.HOUSE sulla rivista DOMUS AUREA.   

♥Aggiornamento del 11 aprile 2013: leggi l'articolo della pubblicazione di RS.HOUSE sulla rivista DOMUS AUREA, aprendo il seguente file pdf.

RS.HOUSE_articolo_domus_aurea.pdf

case history

12 settembre 2010

RS.HOUSE BOZZETTI

Questo nuovo progetto sarà davvero una bella sfida; si tratta di RS.HOUSE, una residenza che dovrò realizzare unendo 2 piccole unità dismesse, una di 40 mq e l'altra di 18 mq, attraverso un connettivo di appena 4 mq, da ricavare sottraendolo dal vano scala per gentile concessione degli altri condomini della palazzina, per un totale di 62 mq calpestabili....

Continua...

24 febbraio 2011

RS.HOUSE CANTIERE

Come già accennato nel precedente articolo sui bozzetti di RS.HOUSE (vedi LINK), gli aspetti edilizi da curare per questo cantiere sono stati tanti e tutti molto delicati, soprattutto perché alcuni di natura strutturale. Nella galleria di immagini possiamo notare che quello che abbiamo scoperto sotto l’intonaco era una struttura fatiscente che necessitava di accurati consolidamenti; addirittu...

Continua...

30 maggio 2011

RS.HOUSE MANIGLIA

Siamo ormai agli sgoccioli dei lavori di RS.HOUSE (vedi LINK del cantiere). In questo articolo presento uno degli ultimi dettagli che ho curato: la maniglia in marmo ancorata su una struttura in acciaio AISI 316, fissata a sua volta sul portone blindato, e adeguatamente distanziata per poter infilare comodamente le dita durante l'impugnatura; la struttura in acciaio contiene una contro-c...

Continua...

14 settembre 2011

RS.HOUSE CERCHIATURA

La proprietaria di RS.HOUSE, in attesa di ultimare i lavori di completamento dell'appartamento situato al 1° piano (vedi LINK del cantiere), mi ha incaricato di dirigere i lavori di cerchiatura dell'appartamento che si trova al 2° piano della stessa palazzina di Pietrasanta, anch'esso di sua proprietà, per una cautela e per una eventuale ristrutturazione da effettuarsi in futuro anche su ques...

Continua...

18 ottobre 2011

RS.HOUSE COMPLETED

Ora che i lavori di RS.HOUSE sono completati, pubblico le foto dello spazio finito e accenno brevemente ad alcuni dettagli che lo caratterizzano: il disegno delle pareti faccia vista (opus incertum toscano) vs. intonaco (vedi link del cantiere dove è raccontata l'operazione di sabbiatura); le superfici a specchio per il MIRROR TV, per lo sportello del vano caldaia, per l'armadio in camera; l'...

Continua...

28 aprile 2013

DOMUS AUREA ARTICOLO

RS.HOUSE è stato un percorso davvero importante per me: ho scoperto sul campo tanti aspetti del mio lavoro che non conoscevo e ho potuto tastare da vicino quali sono le vere responsabilità di un architetto. Questa avventura si conclude con un bellissimo articolo, pubblicato nel trimestrale gennaio/marzo 2013 di DOMUS AUREA, una particolare rivista di architettura che tratta soprattutto temi legati...

Continua...

portfolio in evidenza

portfolio