about > News > CASA GIOVANNINI

23 aprile 2013

CASA GIOVANNINI

CASA GIOVANNINI

Il progetto presentato in questo articolo rappresenta per me un’esperienza particolarmente significativa. Si tratta della residenza di una coppia di coniugi pensionati provenienti da Milano, che hanno scelto Viareggio come luogo in cui stabilire la propria dimora. Per questo intervento sono stato incaricato direttamente dalla società Epoke+Barsaglini, impresa contract chiavi in mano responsabile dei lavori di ristrutturazione. Considerata la complessità e l’ampiezza del progetto, mi sono avvalso della collaborazione di spazioAM, gruppo di lavoro di cui faccio parte, specializzato nello sviluppo di modelli digitali e rendering in ambito design e architettura.

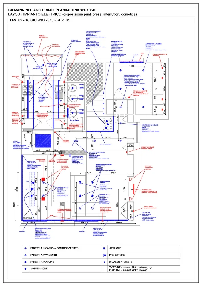
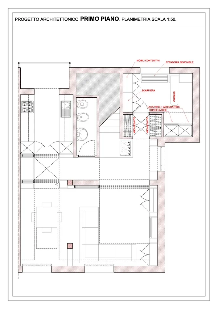
Trattandosi di una residenza distribuita su piano terra, 1° piano e 2° piano, nelle immagini a seguire, oltre ai rendering, ho inserito le planimetrie dei 3 livelli per raccontare quanto sia stato importante sfruttare al massimo lo spazio a disposizione.

Si possono inoltre visionare:

- alcune foto di come si presentava l'edificio prima dei lavori;

- un'ipotesi per la pensilina e il balcone sul prospetto nord;

- altre foto scattate durante la demolizione;

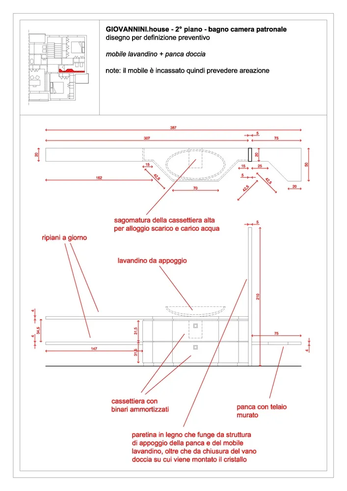
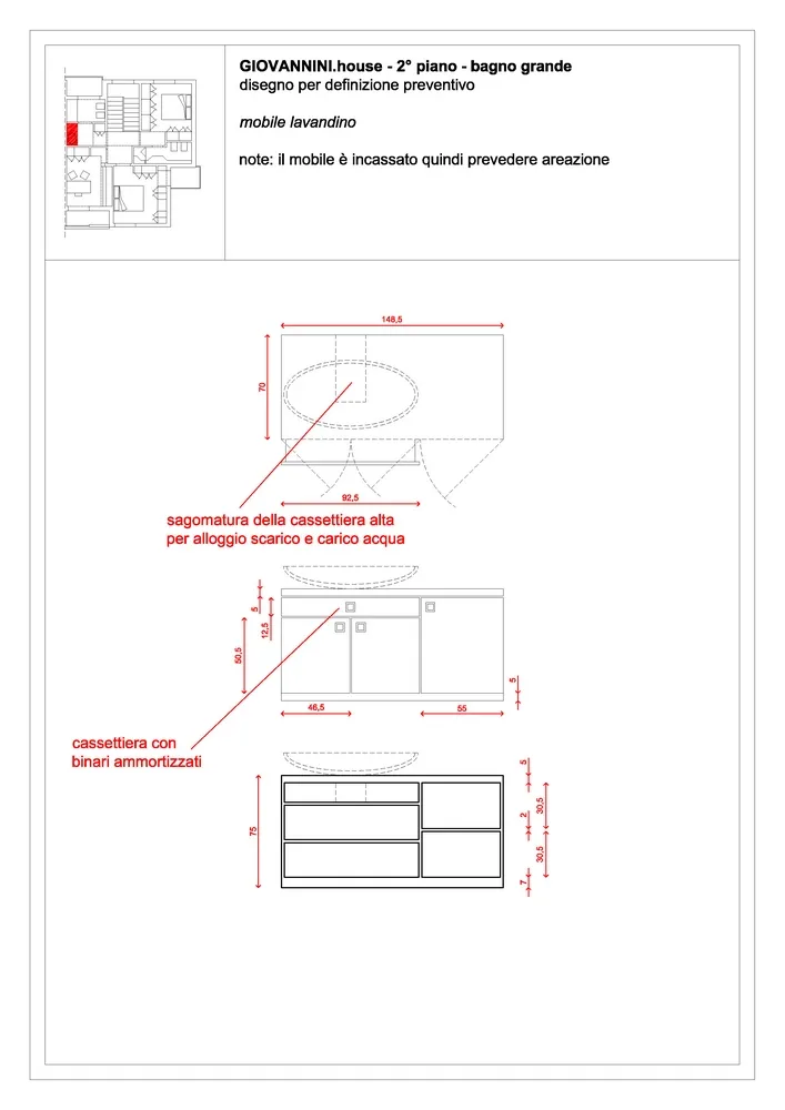
- i disegni dei mobili su misura progettati per integrarsi perfettamente nei vari ambienti;

- il progetto del pianerottolo in vetro che termina il vano scala al 2° piano.

news in evidenza

vantaggiani-floor

03 marzo 2025

VANTAGGIANI FLOOR

Oggi vi porto all'interno di uno dei cantieri che sto seguendo di recente; si tratta di una masseria...

Continua...

news