about > News > LIGO LIVING

10 January 2007

LIGO LIVING

LIGO LIVING

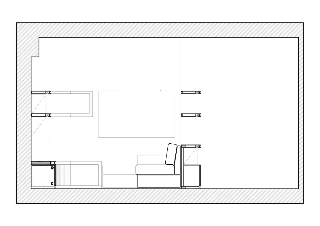
Appena conclusi i lavori di LIGO LIVING, progetto di un living con parete attrezzata "su misura" realizzato a Sava (TA). La peculiarità di questo progetto è soprattutto compresa nello "sbilanciamento delle geometrie" e nella contrapposizione delle linee verticali con quelle orizzontali, temi costanti nelle architetture dell'architetto Zanzarella. Nelle foto sono rappresentati tutti i passaggi della cantierizzazione e della posa dei vari elementi costruttivi:

- la trave strutturale HEB, trattata con flatting e lasciata a vista;

- i mattoncini in pasta rosa, la cui posa è stata seguita con molta attenzione per ottenere una pulizia formale;

- tutti gli step impiantistici, per derivare correttamente gli attacchi nei punti luce prefissati;

- gli inserti di pietra naturale a spacco;

- la falegnameria con illuminazione integrata nei ripiani, a loro volta decorati sulle fasce frontali con un profilo di legno naturale raggiato;

- per concludere, la creazione di un riquadro di pittura murale colore rosso carminio, che crea un'antitesi con la presenza adiacente del fuoco del camino.

Tra le foto, alcuni rendering del primo progetto poi modificato e alcuni elaborati sia planimetrici che di dettaglio.

news

siri-concept

03 March 2012

SIRI CONCEPT

Proposta di riconfigurazione di un living per una abitazione a Fucecchio (FI). Caratteristica del co...

Continua...

vai all'archivio